7/15
Paylaş
Resmi Orjinal Boyutunda Göster
1. Eşdeğer
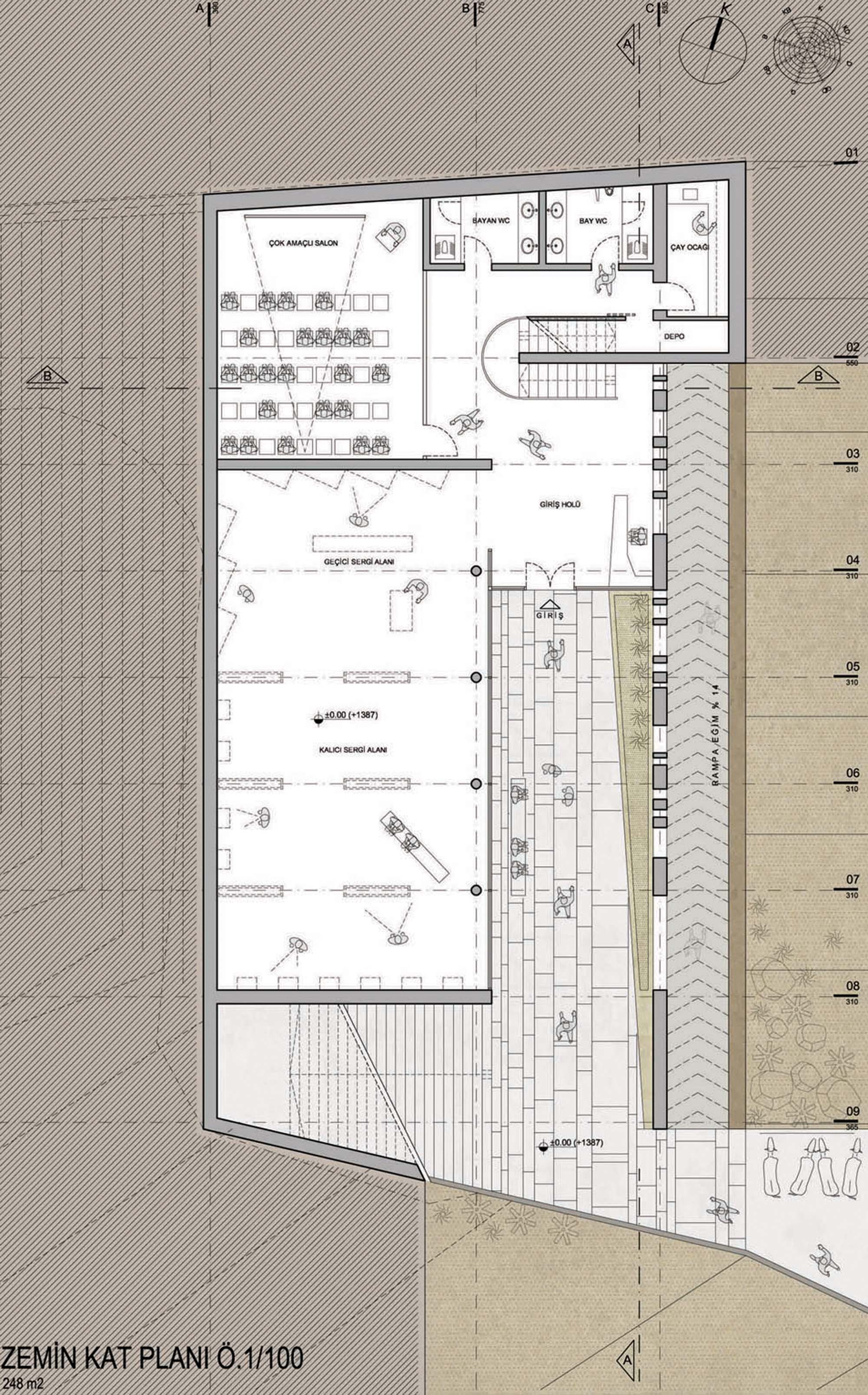
Proje Yeri: Uludere, Şırnak
Proje Ofisi: MTF Proje (Mimari Tasarım Fikirleri)
Proje Tipi: Müze, Anıt / Simge Yapı
Tasarım Ekibi: Derya Ekim Öztepe, Ozan Öztepe, Deniz Ekim Çubukçu, Z.Sofia Török
Danışman: İsmail Yıldırım, Aba Müslim Çelik, Erkut Tokman
Proje Başlangıç Yılı: 2014
Proje Bitiş Yılı: 2014