8/15
Paylaş
Resmi Orjinal Boyutunda Göster
1. Eşdeğer
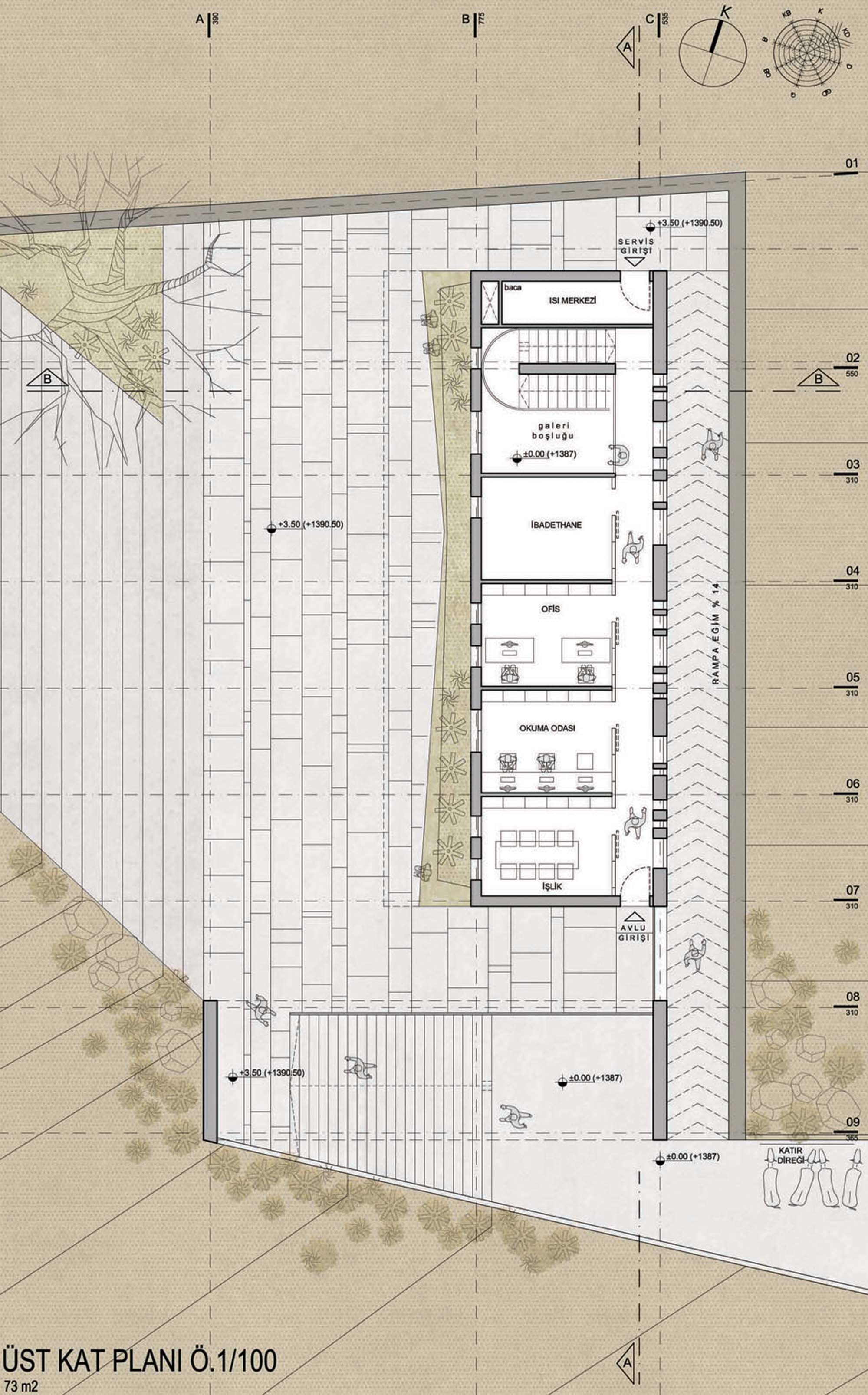
Project Location: Uludere, Şırnak
Project Office: MTF Proje (Mimari Tasarım Fikirleri)
Project Type: Museum, Anıt / Simge Yapı
Tasarım Ekibi: Derya Ekim Öztepe, Ozan Öztepe, Deniz Ekim Çubukçu, Z.Sofia Török
Consultant: İsmail Yıldırım, Aba Müslim Çelik, Erkut Tokman
Project Start Date: 2014
Project End Date: 2014