20/28
Paylaş
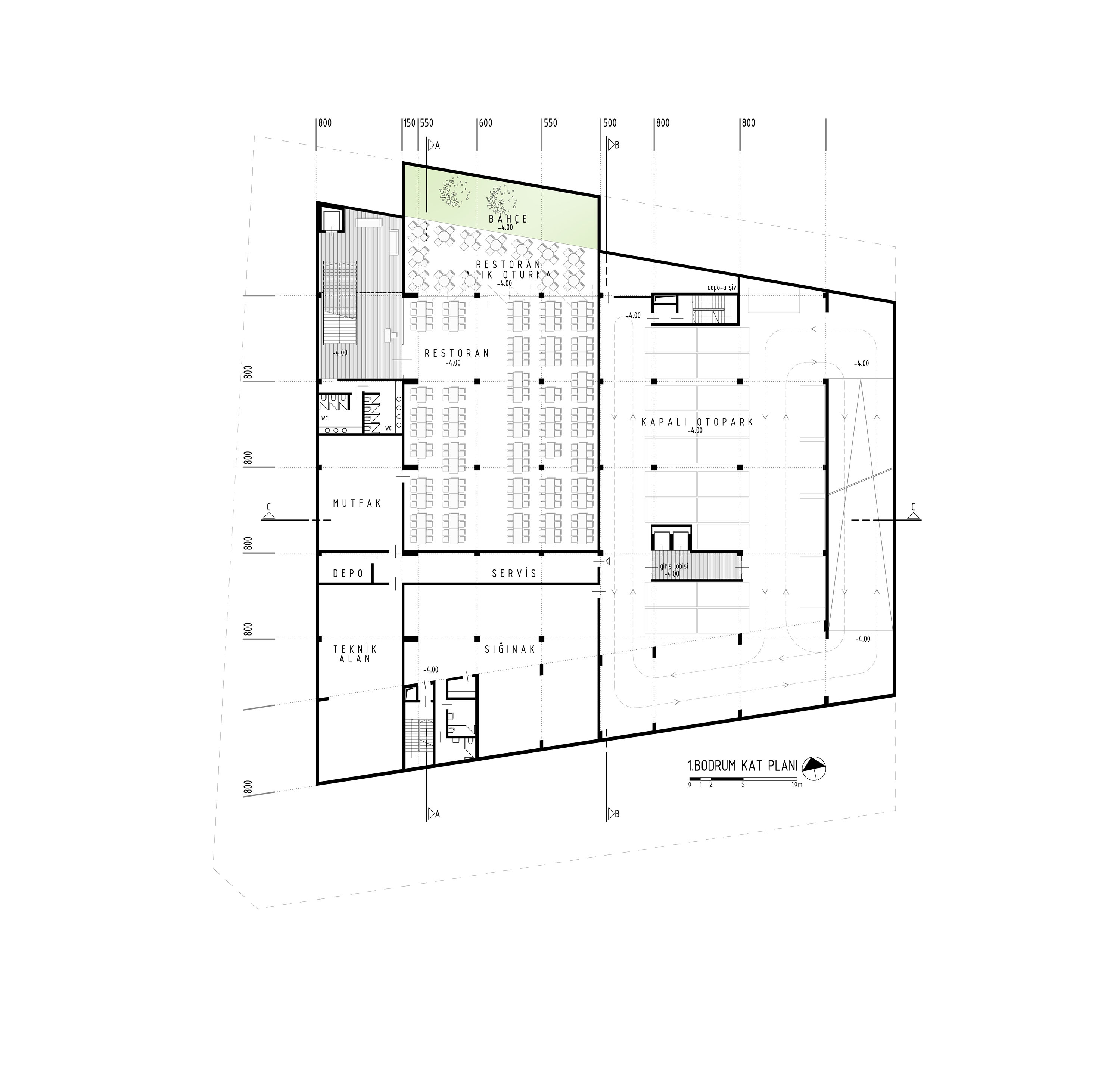
Resmi Orjinal Boyutunda Göster
Adana Ticaret Odası Hizmet Binası Ulusal Mimari Proje Yarışması, 3.Mansiyon
Project Location: Adana, Seyhan
Project Office: SN Mimarlık
Project Type: Offices
Proje Tipi Grubu: 3. Mansiyon
Tasarım Ekibi: Süleyman Akkaş, Nihal Şenkaya Akkaş
Building Plot Area: 2.353 m2
Total Construction Area: 15.316 m2