21/28
Paylaş
Resmi Orjinal Boyutunda Göster
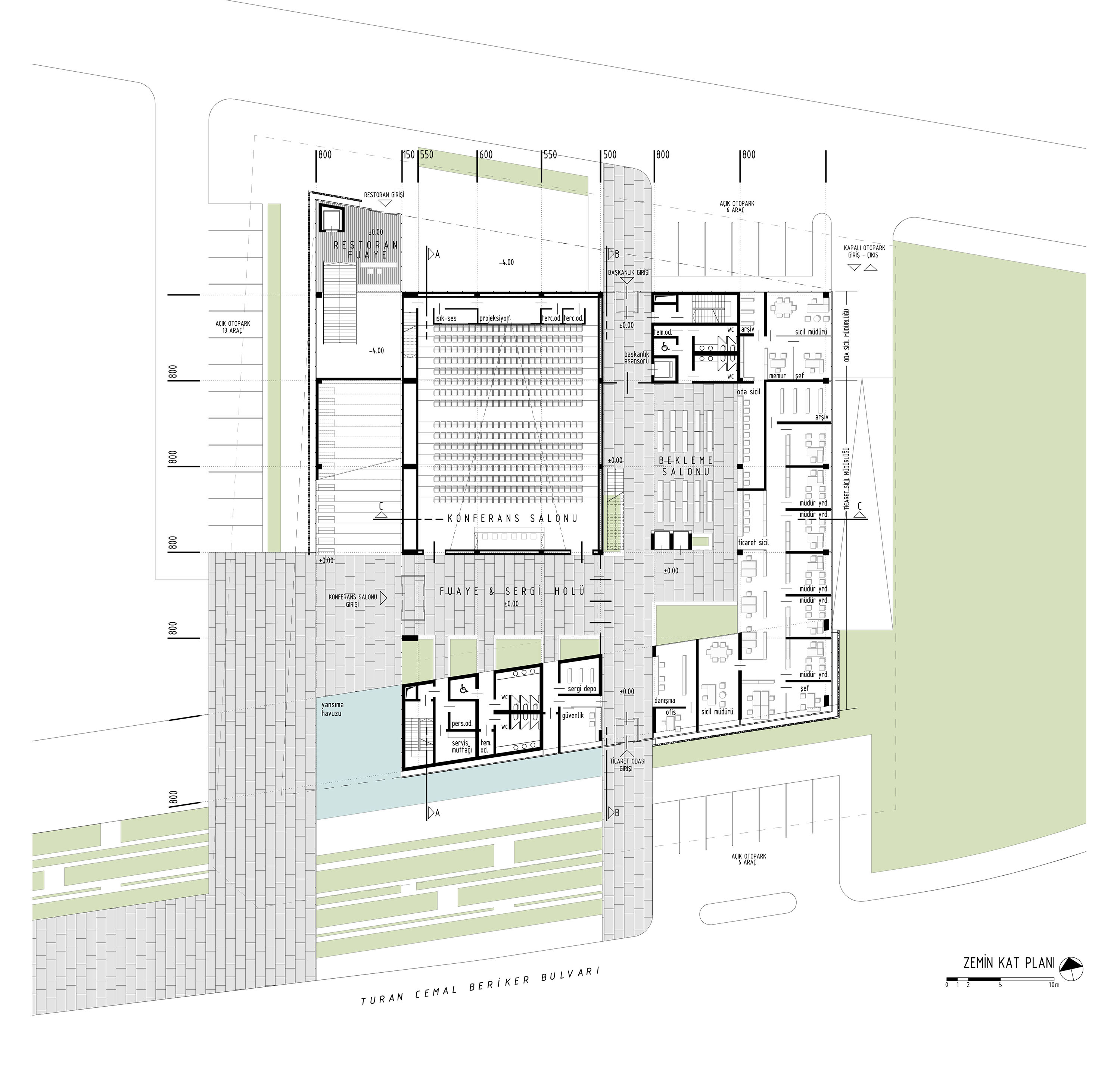
Adana Ticaret Odası Hizmet Binası Ulusal Mimari Proje Yarışması, 3.Mansiyon
Proje Yeri: Adana, Seyhan
Proje Ofisi: SN Mimarlık
Proje Tipi: Ofis
Proje Tipi Grubu: 3. Mansiyon
Tasarım Ekibi: Süleyman Akkaş, Nihal Şenkaya Akkaş
Arsa Alanı: 2.353 m2
Toplam İnşaat Alanı: 15.316 m2