15/16
Paylaş
Resmi Orjinal Boyutunda Göster
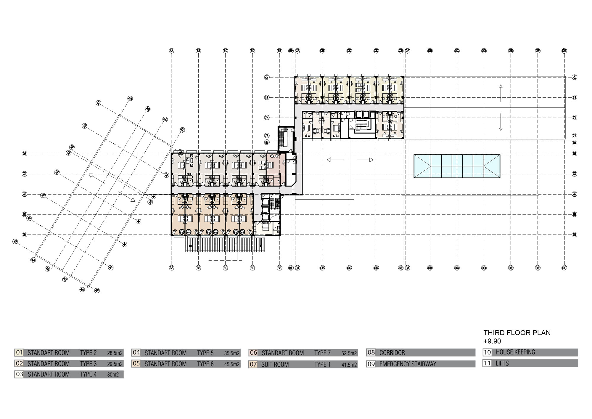
Ak-Bulak Kayak Oteli
Project Location: Kazakistan
Project Office: M-Ofis Mimarlık
Project Type: Hotel / Motel
Proje Tipi Grubu: Konaklama
Tasarım Ekibi: A. Sinan Timoçin, Serkan İğdelipınar
Employer: Ak-Bulak Otel
Yardımcı: Derya Fidan, Cana Terzioğlu
Ana Yüklenici: Ak-Bulak Otel
Interior Architecture: M-Ofis Mimarlık
Structural Project: Yapı Akademisi
Project Start Date: 2013
Project End Date: 2013