16/16
Paylaş
Resmi Orjinal Boyutunda Göster
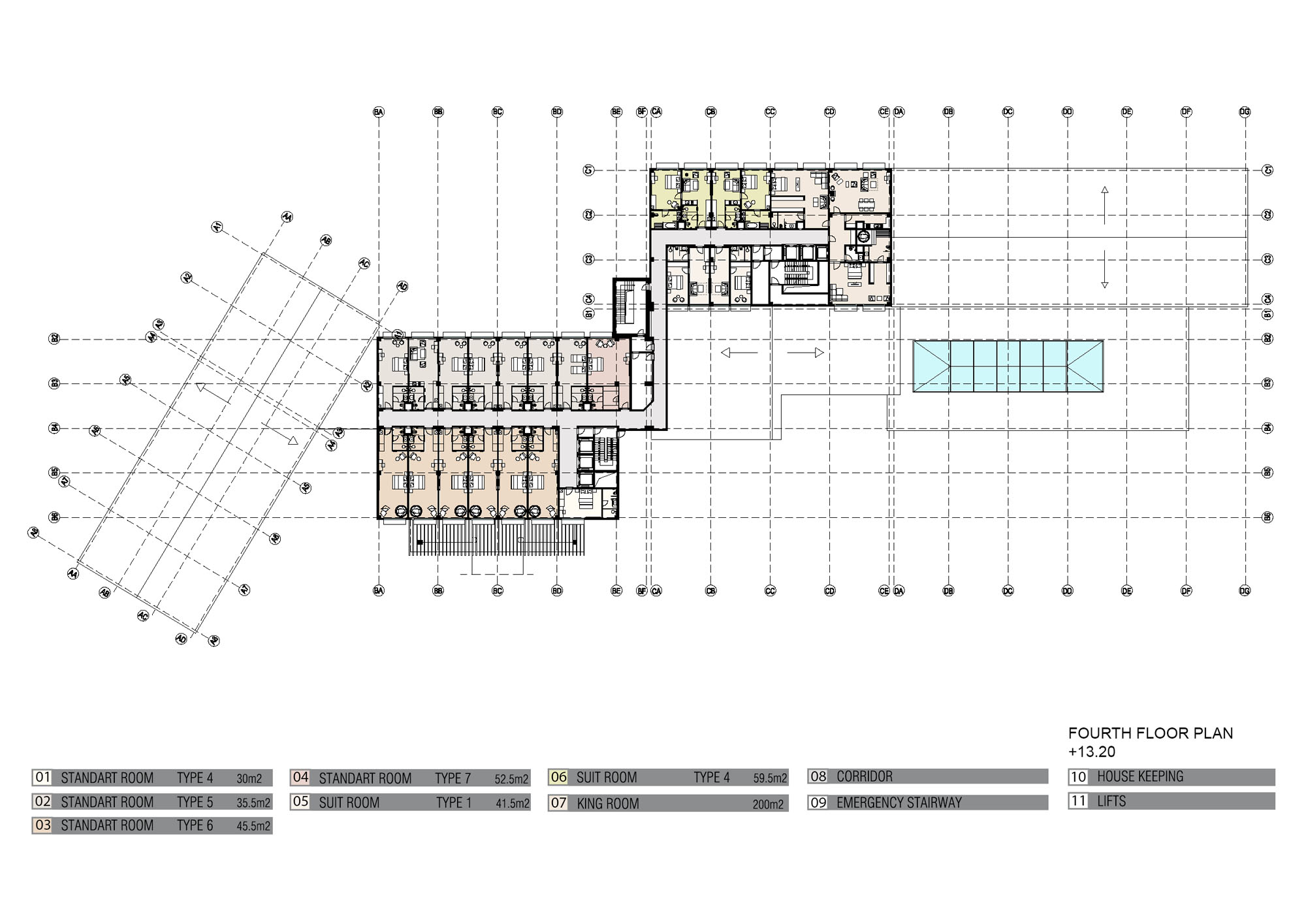
Ak-Bulak Kayak Oteli
Proje Yeri: Kazakistan
Proje Ofisi: M-Ofis Mimarlık
Proje Tipi: Otel / Motel
Proje Tipi Grubu: Konaklama
Tasarım Ekibi: A. Sinan Timoçin, Serkan İğdelipınar
İşveren: Ak-Bulak Otel
Yardımcı: Derya Fidan, Cana Terzioğlu
Ana Yüklenici: Ak-Bulak Otel
İç Mekan Projesi: M-Ofis Mimarlık
Statik Projesi: Yapı Akademisi
Proje Başlangıç Yılı: 2013
Proje Bitiş Yılı: 2013