24/36
Paylaş
Resmi Orjinal Boyutunda Göster
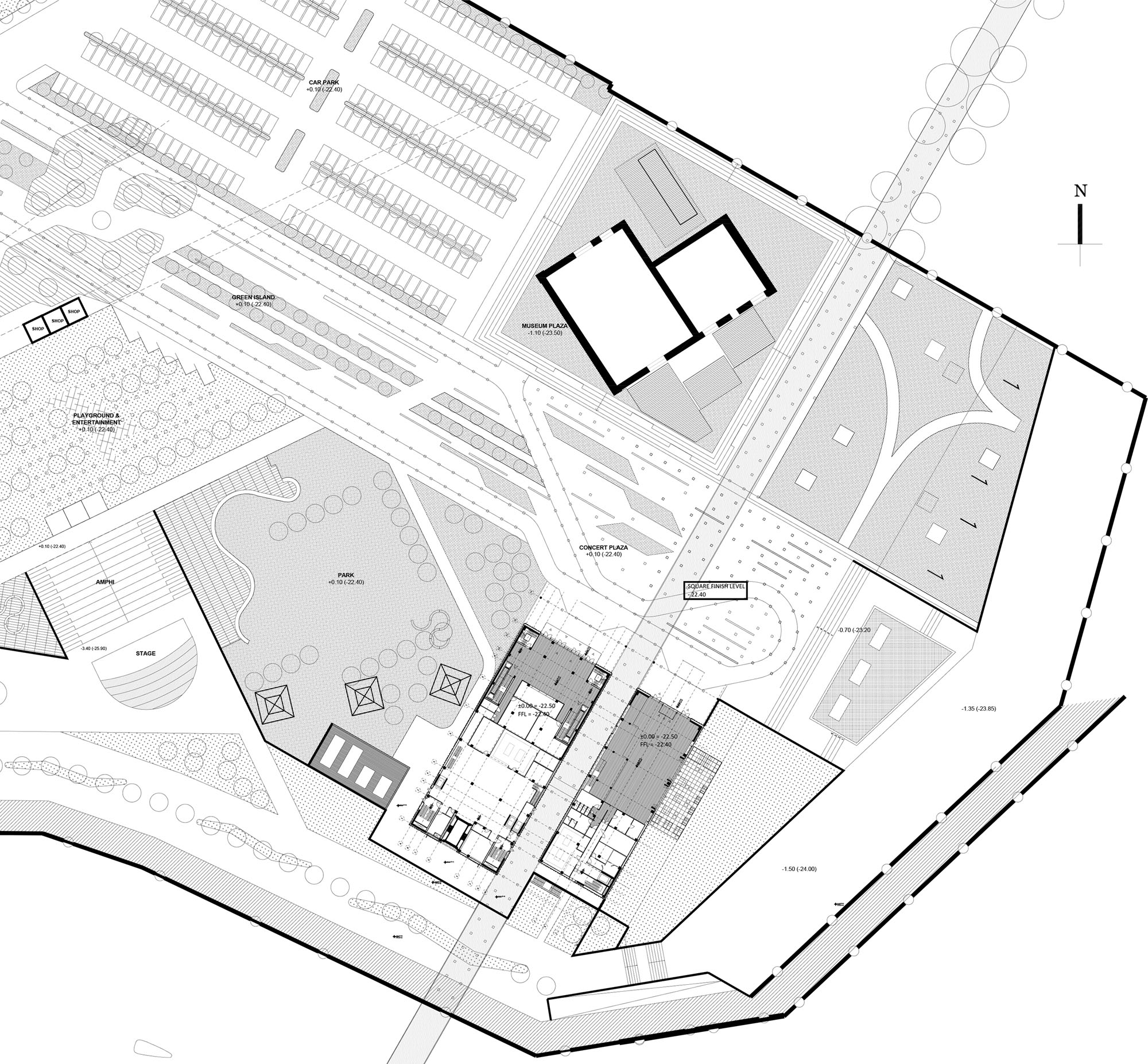
Power Station Bakü
Project Location: Bakü, Azerbaycan
Project Office: Erginoğlu & Çalışlar Mimarlık
Project Type: Cultural Center
Proje Tipi Grubu: Kültür
Tasarım Ekibi: Kerem Erginoğlu, Hasan Çalışlar, Fatih Kariptaş, Serhat Özkan, Zeynep Şankaynağı, Sezen Bilge, İdil Seren Yücel, Füsun Seçer Kariptaş
Employer: Pasha Construction
Ana Yüklenici: Pasha Construction
Interior Architecture: Erginoğlu & Çalışlar Mimarlık, BSH
Lighting Project: LDC
Structural Project: Ural Mühendislik
Mechanical Project: D&T
Electrical Project: D&T
Plumbing Project: D&T
Photography: Cemal Emden
Project Start Date: 2010
Project End Date: 2011
Construction Start Date: 2011
Construction End Date: 2014
Building Plot Area: 12,000 m²
Total Construction Area: 10,000 m²