28/36
Paylaş
Resmi Orjinal Boyutunda Göster
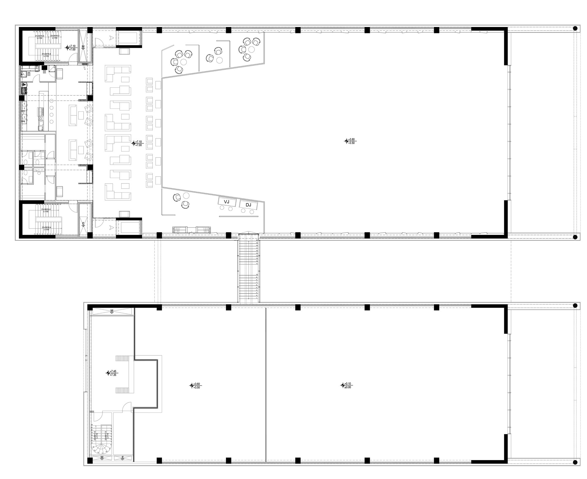
Power Station Bakü
Proje Yeri: Bakü, Azerbaycan
Proje Ofisi: Erginoğlu & Çalışlar Mimarlık
Proje Tipi: Kültür Merkezi
Proje Tipi Grubu: Kültür
Tasarım Ekibi: Kerem Erginoğlu, Hasan Çalışlar, Fatih Kariptaş, Serhat Özkan, Zeynep Şankaynağı, Sezen Bilge, İdil Seren Yücel, Füsun Seçer Kariptaş
İşveren: Pasha Construction
Ana Yüklenici: Pasha Construction
İç Mekan Projesi: Erginoğlu & Çalışlar Mimarlık, BSH
Aydınlatma Projesi: LDC
Statik Projesi: Ural Mühendislik
Mekanik Projesi: D&T
Elektrik Projesi: D&T
Tesisat Projesi: D&T
Fotoğraf: Cemal Emden
Proje Başlangıç Yılı: 2010
Proje Bitiş Yılı: 2011
İnşaat Başlangıç Yılı: 2011
İnşaat Bitiş Yılı: 2014
Arsa Alanı: 12,000 m²
Toplam İnşaat Alanı: 10,000 m²