34/40
Paylaş
Resmi Orjinal Boyutunda Göster
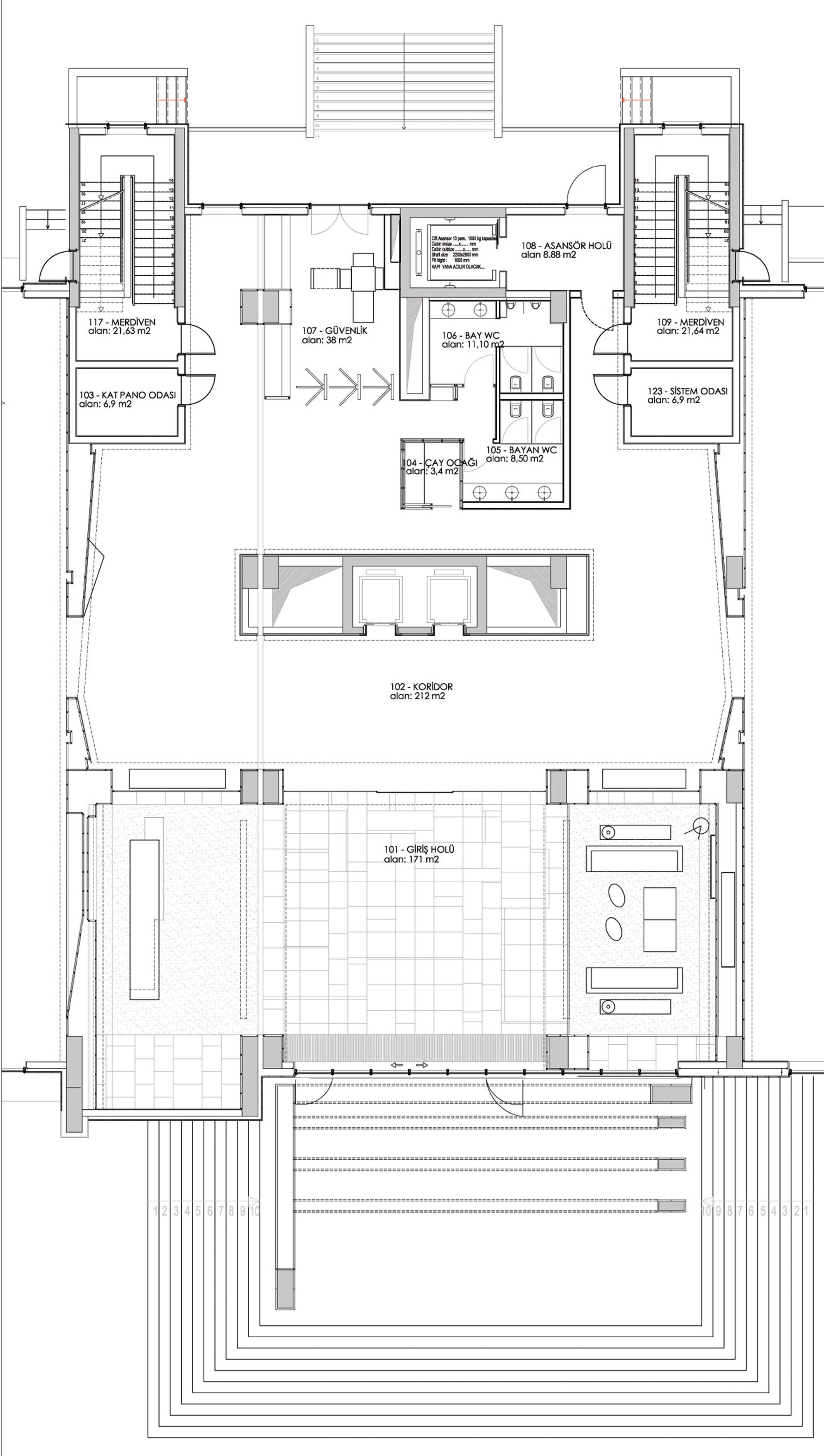
Polimeks İnşaat Aşkabat İdari Binası
Project Location: Aşkabat, Türkmenistan
Project Office: mimaristudio
Project Type: Offices
Tasarım Ekibi: Ayça Akkaya Kul, Önder Kul
Employer: Polimeks İnşaat
Yardımcı: Numan Balkaş, Kürşad Hazer
Ana Yüklenici: Polimeks İnşaat
Peyzaj Mimarlığı: Polimeks İnşaat Aşkabat Peyzaj Grubu
Interior Architecture: mimaristudio
Projcet Manager: Müge Katlandur Çetiner, Esra Eren Tekcan
Lighting Project: mimaristudio
Structural Project: Polimeks İnşaat Aşkabat Statik Grubu
Mechanical Project: Polimeks İnşaat Aşkabat Mekanik Grubu
Electrical Project: Tasarım Proje
Plumbing Project: Polimeks İnşaat Aşkabat Mekanik Grubu
Photography: Ozan Çakmak
Project Start Date: 2012
Project End Date: 2013
Construction Start Date: 2012
Construction End Date: 2013
Total Construction Area: 8,000 m²