35/40
Paylaş
Resmi Orjinal Boyutunda Göster
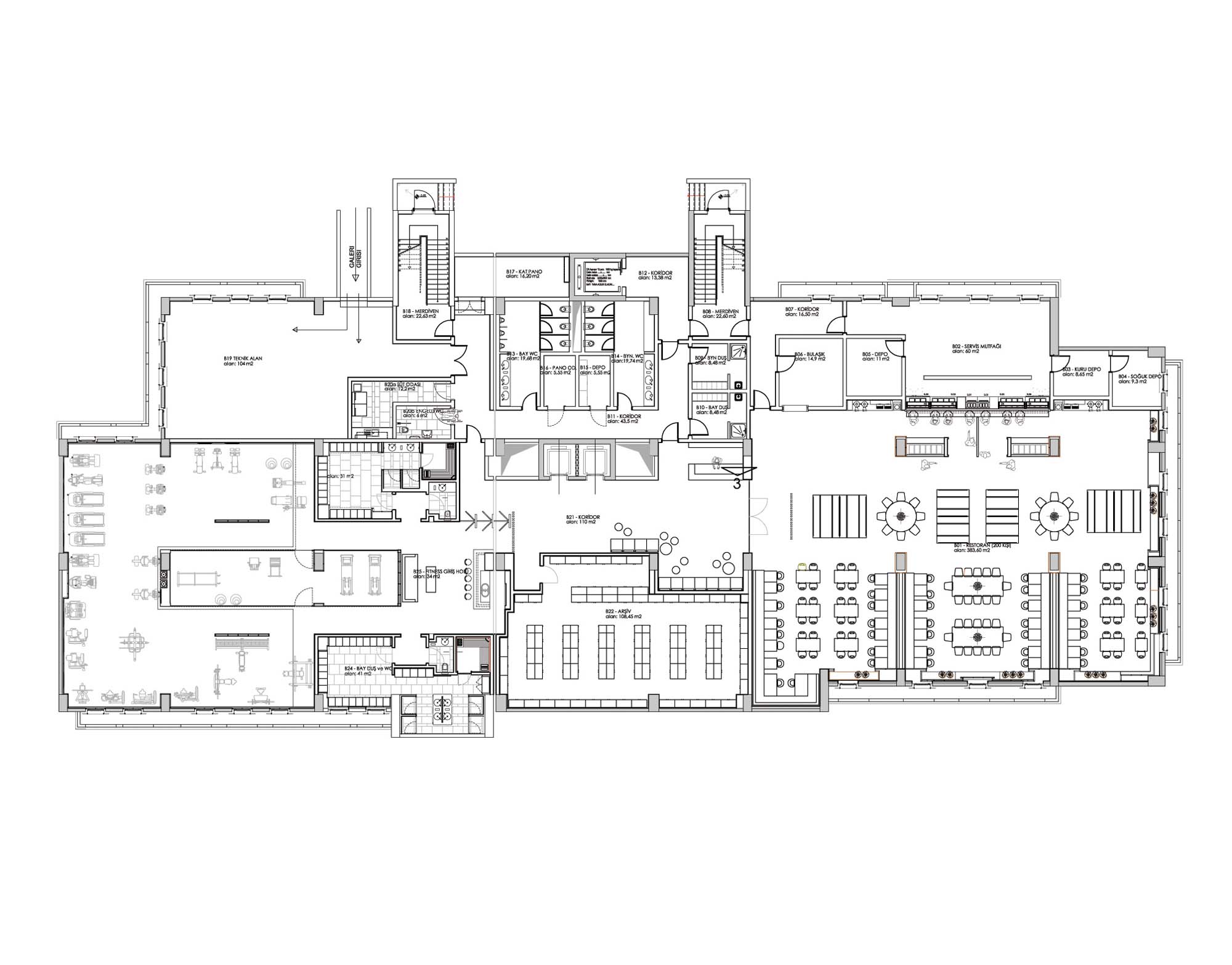
Polimeks İnşaat Aşkabat İdari Binası
Proje Yeri: Aşkabat, Türkmenistan
Proje Ofisi: mimaristudio
Proje Tipi: Ofis
Tasarım Ekibi: Ayça Akkaya Kul, Önder Kul
İşveren: Polimeks İnşaat
Yardımcı: Numan Balkaş, Kürşad Hazer
Ana Yüklenici: Polimeks İnşaat
Peyzaj Mimarlığı: Polimeks İnşaat Aşkabat Peyzaj Grubu
İç Mekan Projesi: mimaristudio
Proje Yöneticisi: Müge Katlandur Çetiner, Esra Eren Tekcan
Aydınlatma Projesi: mimaristudio
Statik Projesi: Polimeks İnşaat Aşkabat Statik Grubu
Mekanik Projesi: Polimeks İnşaat Aşkabat Mekanik Grubu
Elektrik Projesi: Tasarım Proje
Tesisat Projesi: Polimeks İnşaat Aşkabat Mekanik Grubu
Fotoğraf: Ozan Çakmak
Proje Başlangıç Yılı: 2012
Proje Bitiş Yılı: 2013
İnşaat Başlangıç Yılı: 2012
İnşaat Bitiş Yılı: 2013
Toplam İnşaat Alanı: 8,000 m²