35/39
Paylaş
Resmi Orjinal Boyutunda Göster
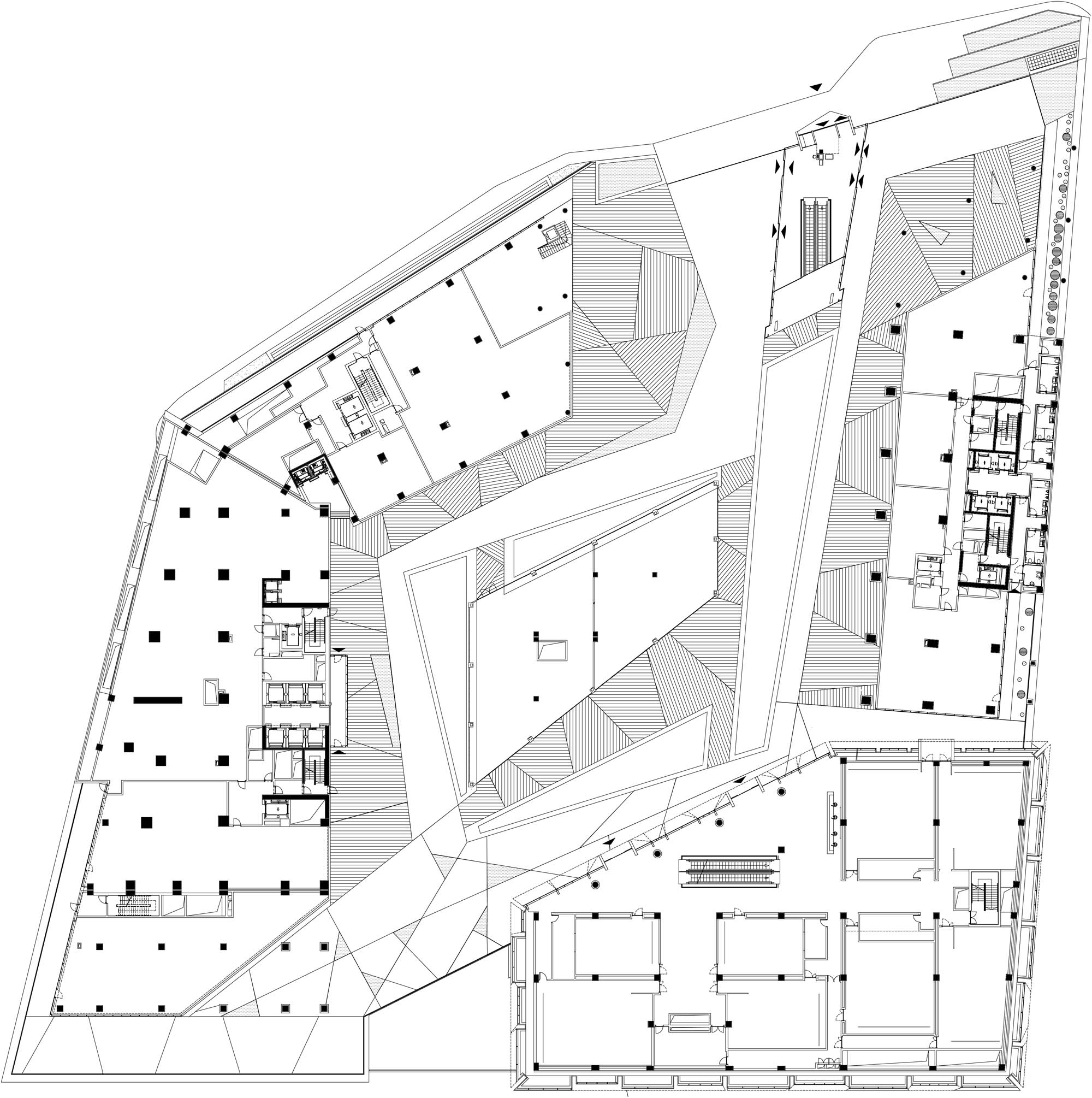
Next Level Ankara
Proje Yeri: Çankaya, Ankara
Proje Ofisi: Brigitte Weber Architects
Proje Tipi: Konut Sitesi / Grubu, Ofis, Alışveriş Merkezi
Proje Tipi Grubu: Konut
Tasarım Ekibi: Fidan Çetin, Brigitte Weber
İşveren: Pasifik İnşaat
Danışman: Servotel Corporation, MFI Partners
Yardımcı: Tuğçe Kodalak, Şima Coşkun, Alev Özçelik, Emel Acar, Olgu Ceylan, Elif Gündoğdu, Muzaffer Korkmaz, Onur Aygenç
Ana Yüklenici: Pasifik İnşaat
Peyzaj Mimarlığı: DS Mimarlık
İç Mekan Projesi: Brigitte Weber Architects
Proje Yöneticisi: Pasifik İnşaat, Bünyamin Mutlu
Aydınlatma Projesi: Studio Lighting Design
Statik Projesi: Kınacı Mühendislik
Mekanik Projesi: Okutan Mühendislik
Elektrik Projesi: HB Teknik Elektrik Mühendislik
Akustik Danışmanı: Işın Mezzo Stüdyo
Yangın Güvenlik Danışmanı: Kazım Beceren
Proje Başlangıç Yılı: 2010
Proje Bitiş Yılı: 2013
İnşaat Başlangıç Yılı: 2011
İnşaat Bitiş Yılı: 2014
Arsa Alanı: 19,560 m²
Toplam İnşaat Alanı: 203,000 m²