37/39
Paylaş
Resmi Orjinal Boyutunda Göster
Next Level Ankara
Project Location: Çankaya, Ankara
Project Office: Brigitte Weber Architects
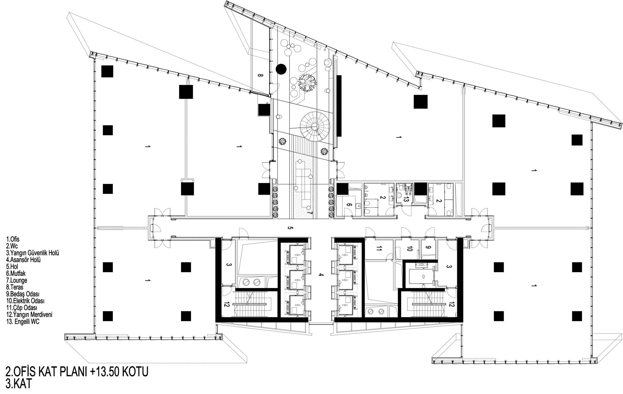
Project Type: Housing Complex, Offices, Shopping Mall
Proje Tipi Grubu: Konut
Tasarım Ekibi: Fidan Çetin, Brigitte Weber
Employer: Pasifik İnşaat
Consultant: Servotel Corporation, MFI Partners
Yardımcı: Tuğçe Kodalak, Şima Coşkun, Alev Özçelik, Emel Acar, Olgu Ceylan, Elif Gündoğdu, Muzaffer Korkmaz, Onur Aygenç
Ana Yüklenici: Pasifik İnşaat
Peyzaj Mimarlığı: DS Mimarlık
Interior Architecture: Brigitte Weber Architects
Projcet Manager: Pasifik İnşaat, Bünyamin Mutlu
Lighting Project: Studio Lighting Design
Structural Project: Kınacı Mühendislik
Mechanical Project: Okutan Mühendislik
Electrical Project: HB Teknik Elektrik Mühendislik
Acoustic Consultant: Işın Mezzo Stüdyo
Fire Safety Consultant: Kazım Beceren
Project Start Date: 2010
Project End Date: 2013
Construction Start Date: 2011
Construction End Date: 2014
Building Plot Area: 19,560 m²
Total Construction Area: 203,000 m²