10/10
Paylaş
Resmi Orjinal Boyutunda Göster
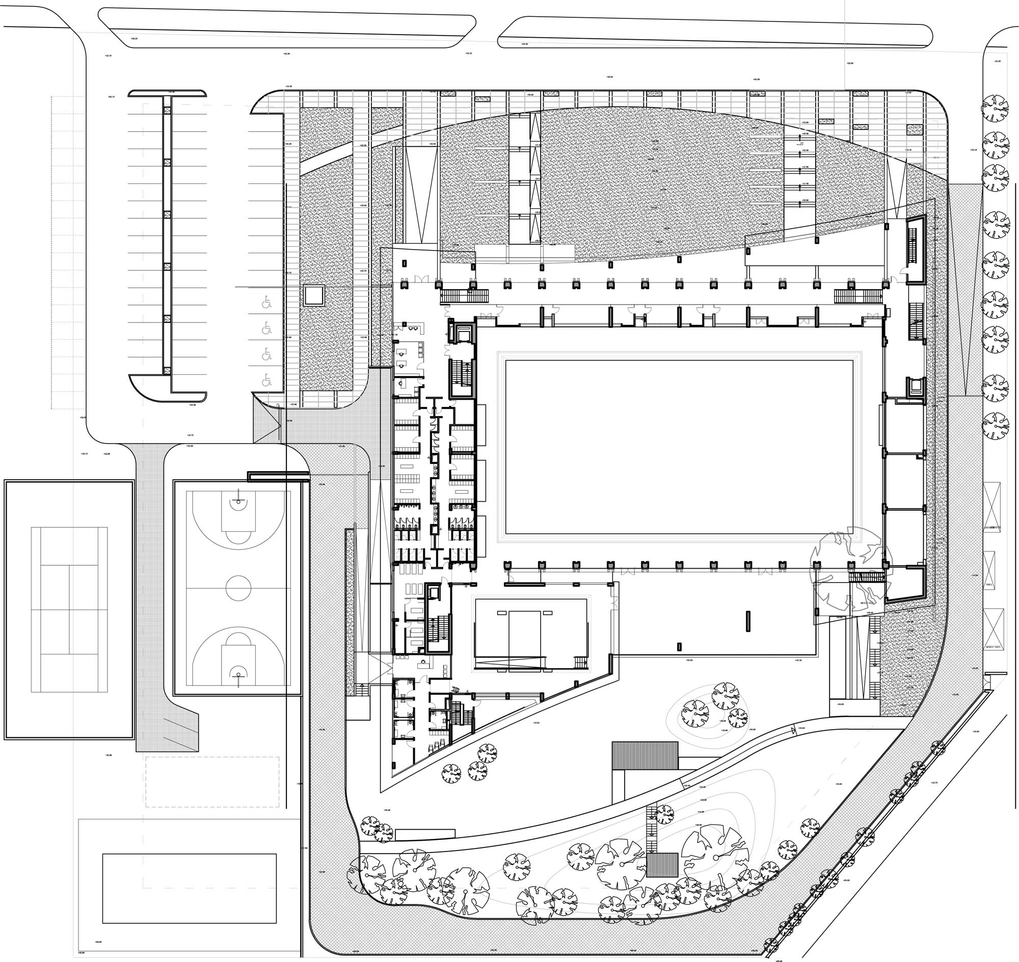
Manisa Su Sporları Kulübü Kapalı Olimpik Havuzu
Project Location: Manisa
Project Office: Erkal Mimarlık
Project Type: Indoors Swimming Pool
Tasarım Ekibi: Emre Erkal
Employer: Manisa Su Sporları Kulübü
Yardımcı: Bekir Aşçıoğlu, Demet Yüce
Project Start Date: 2013
Project End Date: 2014,
Construction Start Date: 2015
Building Plot Area: 17,000 m2
Total Construction Area: 8,000 m²