9/10
Paylaş
Resmi Orjinal Boyutunda Göster
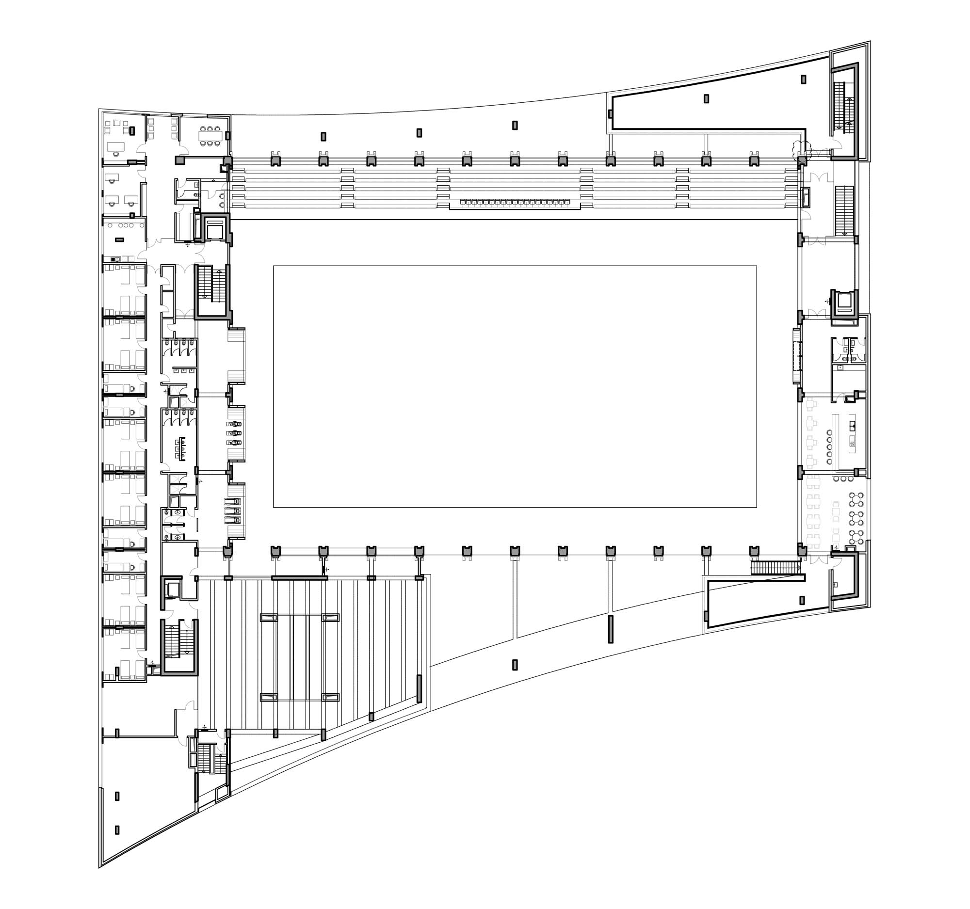
Manisa Su Sporları Kulübü Kapalı Olimpik Havuzu
Proje Yeri: Manisa
Proje Ofisi: Erkal Mimarlık
Proje Tipi: Kapalı Yüzme Havuzu
Tasarım Ekibi: Emre Erkal
İşveren: Manisa Su Sporları Kulübü
Yardımcı: Bekir Aşçıoğlu, Demet Yüce
Proje Başlangıç Yılı: 2013
Proje Bitiş Yılı: 2014,
İnşaat Başlangıç Yılı: 2015
Arsa Alanı: 17,000 m2
Toplam İnşaat Alanı: 8,000 m²