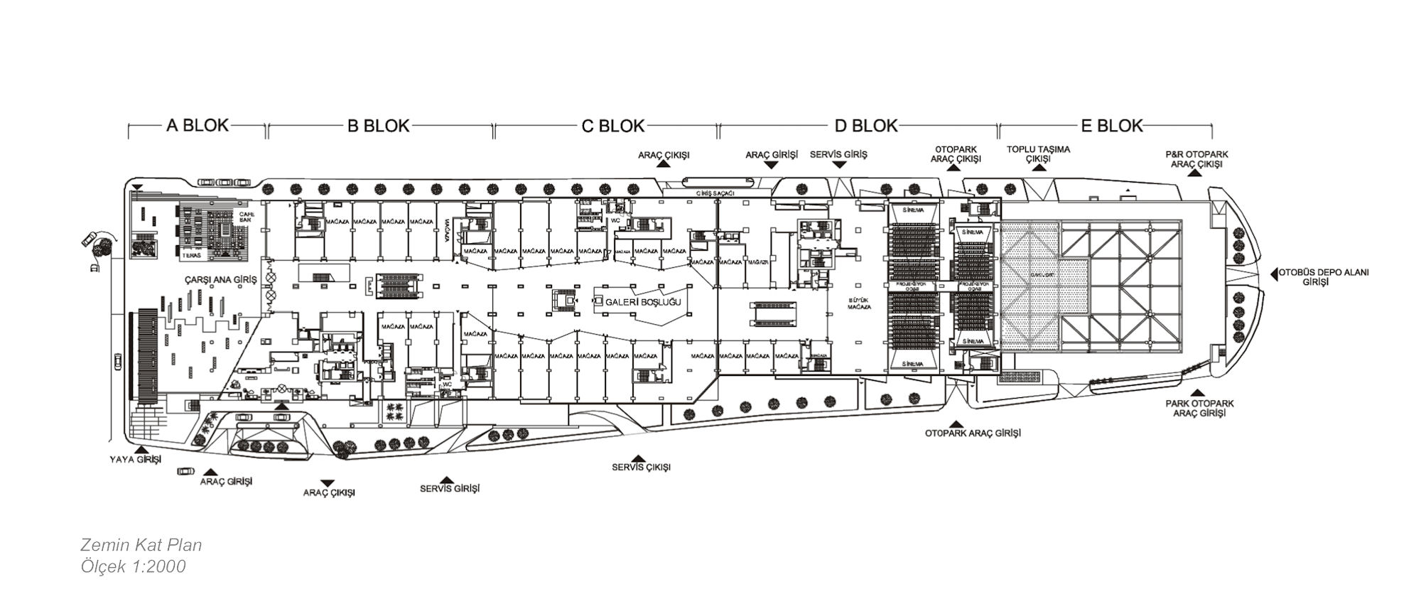
Zemin Kat Planı
11/21
Paylaş
Resmi Orjinal Boyutunda Göster
Trump Towers
Proje Yeri: Şişli, İstanbul
Proje Ofisi: Brigitte Weber Architects
Proje Tipi: Ofis, Alışveriş Merkezi, Apartman
Proje Tipi Grubu: Konut
Tasarım Ekibi: Brigitte Weber
İşveren: Ortadoğu Otomotiv
Ana Yüklenici: D Yapı
Peyzaj Mimarlığı: DS Mimarlık
İç Mekan Projesi: Brigitte Weber Architects
Aydınlatma Projesi: Erde Elektrik, Brigitte Weber Architects
Statik Projesi: Altıneller Mühendislik
Mekanik Projesi: Birikim Mühendislik
Elektrik Projesi: Erde Elektrik
Proje Başlangıç Yılı: 2006
Proje Bitiş Yılı: 2011
İnşaat Başlangıç Yılı: 2007
İnşaat Bitiş Yılı: 2011
Arsa Alanı: 23.370 m²
Toplam İnşaat Alanı: 260.000 m²