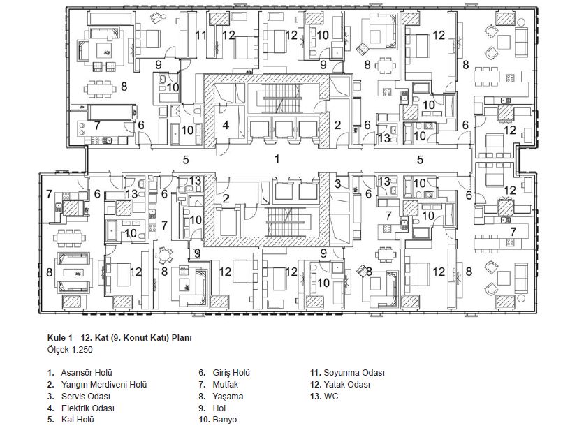
9. Kat Planı
14/21
Paylaş
Resmi Orjinal Boyutunda Göster
Trump Towers
Project Location: Şişli, İstanbul
Project Office: Brigitte Weber Architects
Project Type: Offices, Shopping Mall, Apartment
Proje Tipi Grubu: Konut
Tasarım Ekibi: Brigitte Weber
Employer: Ortadoğu Otomotiv
Ana Yüklenici: D Yapı
Peyzaj Mimarlığı: DS Mimarlık
Interior Architecture: Brigitte Weber Architects
Lighting Project: Erde Elektrik, Brigitte Weber Architects
Structural Project: Altıneller Mühendislik
Mechanical Project: Birikim Mühendislik
Electrical Project: Erde Elektrik
Project Start Date: 2006
Project End Date: 2011
Construction Start Date: 2007
Construction End Date: 2011
Building Plot Area: 23.370 m²
Total Construction Area: 260.000 m²