14/17
Paylaş
Resmi Orjinal Boyutunda Göster
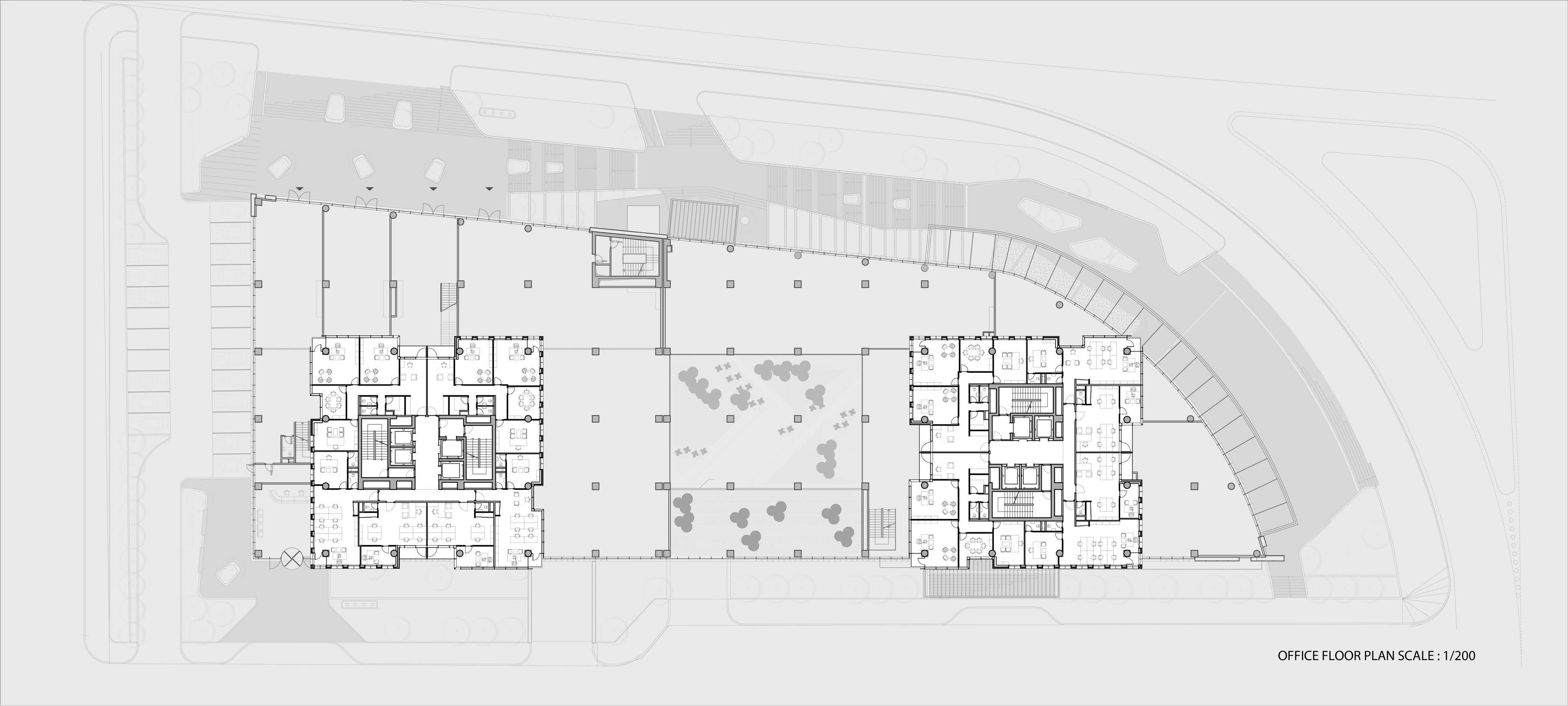
MFS İŞ MERKEZİ
Proje Yeri: Ankara
Proje Ofisi: A Tasarım Mimarlık
Proje Tipi: Ofis
Proje Tipi Grubu: Ticari
Tasarım Ekibi: Ali Osman Öztürk
İşveren: Alternatif İnşaat, Simtes Elektrik
Yardımcı: Aslı Altıntaş, Ceyda Er Çelik, Cüneyt Öztürk, Ersin Candan, Harun Karabulut, Hatice Baştabak, Nil Ece İnce, Niyazi Ayvaz, Yasemin Ünal
Statik Projesi: Yüksek Proje İnşaat, İbrahim Öztürk
Mekanik Projesi: Setes Mühendislik, Nevzat Öztürk
Elektrik Projesi: Akay Mühendislik, Cengiz Özkan
Proje Başlangıç Yılı: 2011
Toplam İnşaat Alanı: 60,000 m²