17/17
Paylaş
Resmi Orjinal Boyutunda Göster
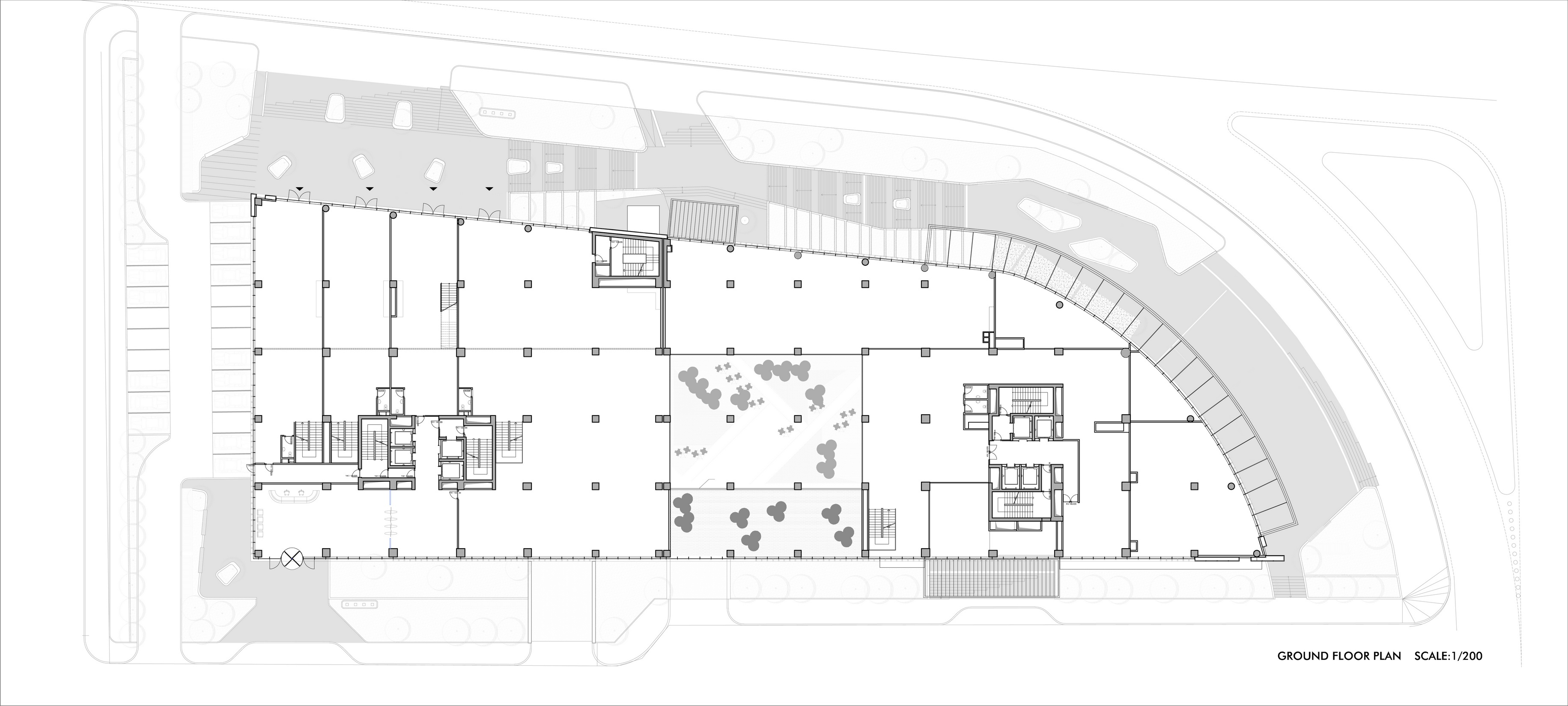
MFS İŞ MERKEZİ
Project Location: Ankara
Project Office: A Tasarım Mimarlık
Project Type: Offices
Proje Tipi Grubu: Commercial
Tasarım Ekibi: Ali Osman Öztürk
Employer: Alternatif İnşaat, Simtes Elektrik
Yardımcı: Aslı Altıntaş, Ceyda Er Çelik, Cüneyt Öztürk, Ersin Candan, Harun Karabulut, Hatice Baştabak, Nil Ece İnce, Niyazi Ayvaz, Yasemin Ünal
Structural Project: Yüksek Proje İnşaat, İbrahim Öztürk
Mechanical Project: Setes Mühendislik, Nevzat Öztürk
Electrical Project: Akay Mühendislik, Cengiz Özkan
Project Start Date: 2011
Total Construction Area: 60,000 m²