16/23
Paylaş
Resmi Orjinal Boyutunda Göster
Detur Antalya
Project Location: Antalya, Muratpaşa
Project Office: DNA Mimarlık Nail Atasoy
Project Type: Offices
Proje Tipi Grubu: Commercial
Tasarım Ekibi: Nail Atasoy
Employer: Detur
Yardımcı: Hülya Tuncer, Sümeyya Yeğiner, Dilan Aktaş, Kazım Durmaz, Arzu Atasoy
Ana Yüklenici: DNA Mimarlık Nail Atasoy
Interior Architecture: DNA Mimarlık Nail Atasoy
Projcet Manager: Nail Atasoy
Structural Project: Çetin Durdu
Mechanical Project: Isı Tek
Electrical Project: ÜTK Elektrik
Plumbing Project: Isı Tek
Project Start Date: 2013
Project End Date: 2014
Construction Start Date: 2013
Construction End Date: 2014
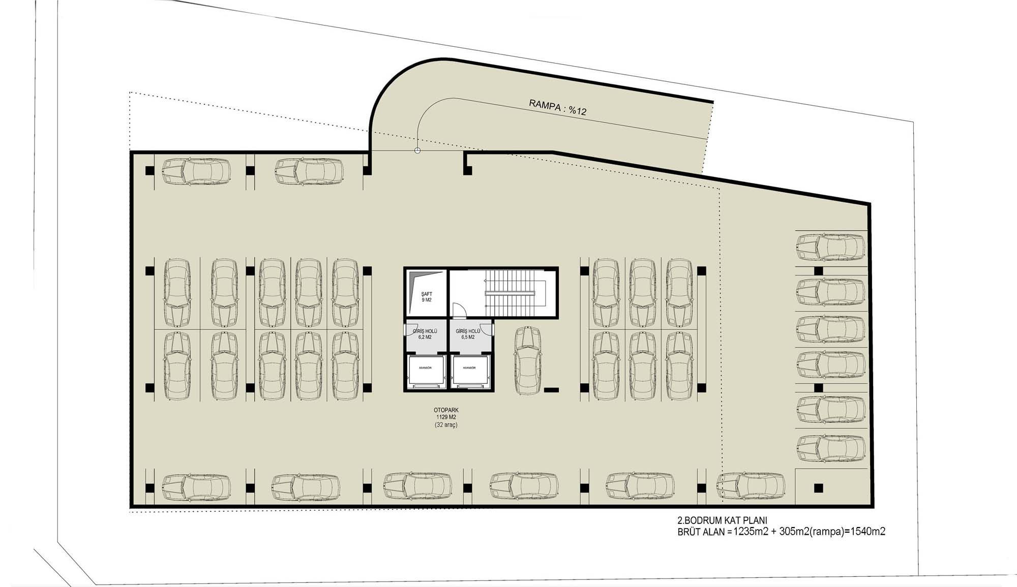
Building Plot Area: 2,173 m²
Total Construction Area: 5,697 m²