18/23
Paylaş
Resmi Orjinal Boyutunda Göster
Detur Antalya
Proje Yeri: Antalya, Muratpaşa
Proje Ofisi: DNA Mimarlık Nail Atasoy
Proje Tipi: Ofis
Proje Tipi Grubu: Ticari
Tasarım Ekibi: Nail Atasoy
İşveren: Detur
Yardımcı: Hülya Tuncer, Sümeyya Yeğiner, Dilan Aktaş, Kazım Durmaz, Arzu Atasoy
Ana Yüklenici: DNA Mimarlık Nail Atasoy
İç Mekan Projesi: DNA Mimarlık Nail Atasoy
Proje Yöneticisi: Nail Atasoy
Statik Projesi: Çetin Durdu
Mekanik Projesi: Isı Tek
Elektrik Projesi: ÜTK Elektrik
Tesisat Projesi: Isı Tek
Proje Başlangıç Yılı: 2013
Proje Bitiş Yılı: 2014
İnşaat Başlangıç Yılı: 2013
İnşaat Bitiş Yılı: 2014
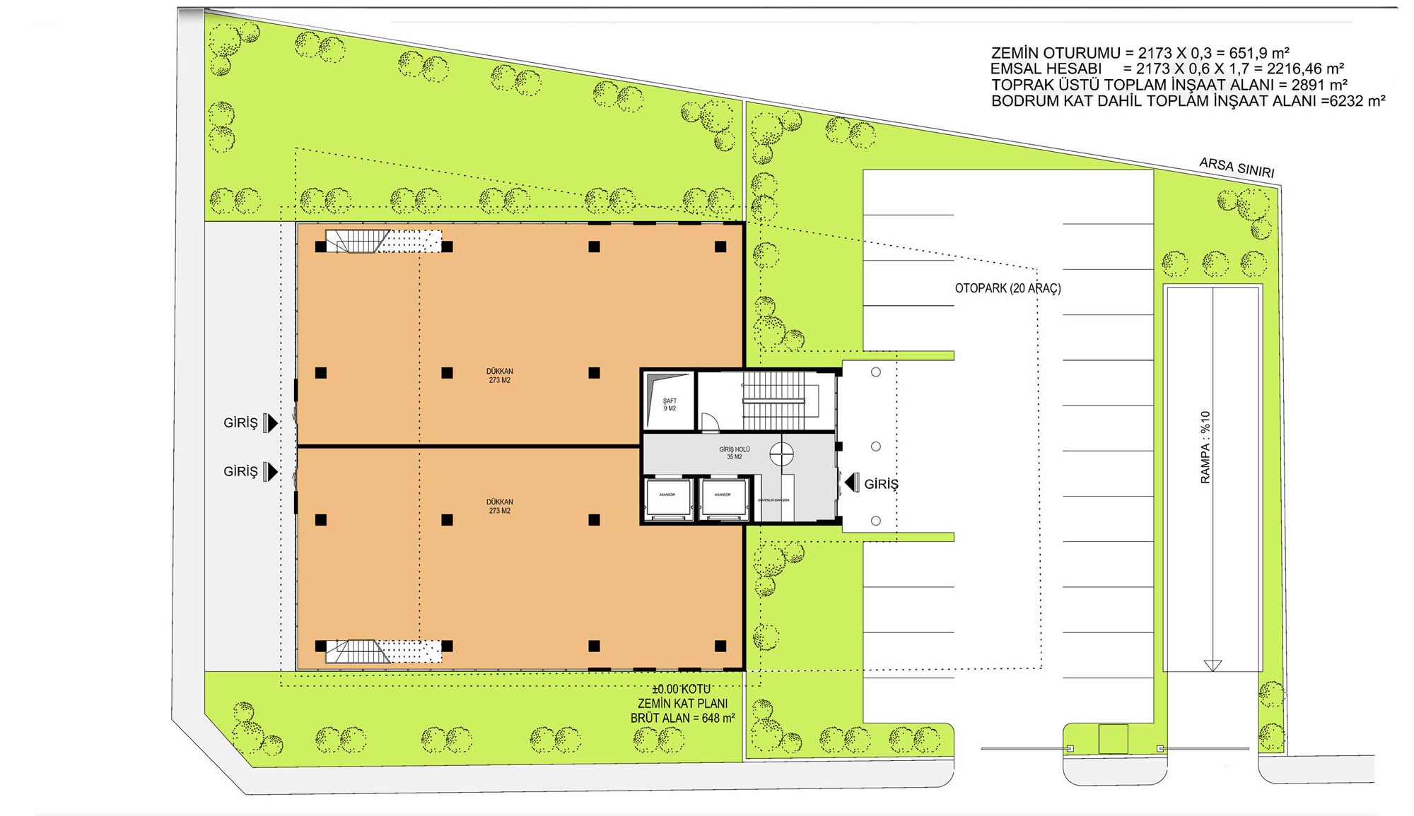
Arsa Alanı: 2,173 m²
Toplam İnşaat Alanı: 5,697 m²