53/67
Paylaş
Resmi Orjinal Boyutunda Göster
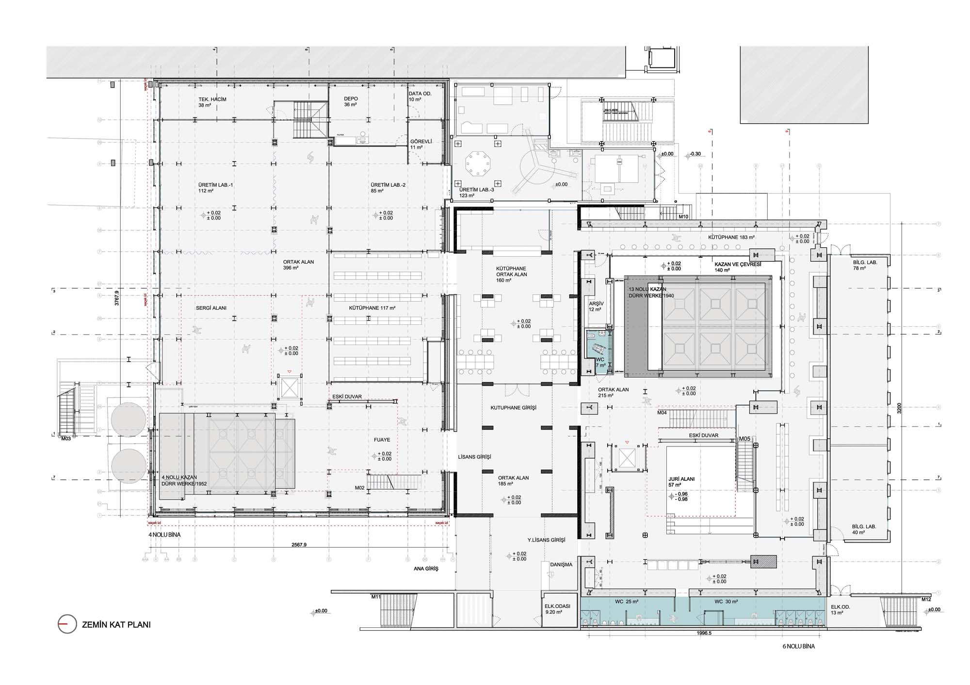
Santral 4 ve 6 nolu Kazan Daireleri Mimarlık Fakültesi ve Kütüphane Dönüşümü
Proje Yeri: Eyüpsultan, İstanbul
Proje Ofisi: Nevzat Sayın Mimarlık Hizmetleri (NSMH)
Proje Tipi: Yüksek Öğretim Yapısı, Kütüphane
Proje Tipi Grubu: Eğitim
Tasarım Ekibi: Nevzat Sayın, Selin Özkan, Gaye Keskin Erol, Serkan Çakıt, Sibel Özdoğan, Metehan Kahya
İşveren: İstanbul Bilgi Üniversitesi
Danışman: Cem Altun, Sami Metin Uludoğan
Yardımcı: Lale Ceylan, Mehmet Hakan Akaydın
Ana Yüklenici: Erkay İnşaat
İç Mekan Projesi: Nevzat Sayın Mimarlık Hizmetleri (NSMH)
Proje Yöneticisi: Levent Şahin, Fatih Çakır, İstanbul Bilgi Üniversitesi, Teknik Müdürlük
Statik Projesi: Sigma Mühendislik
Mekanik Projesi: Proda Mühendislik
Elektrik Projesi: Erdem Elektrik
Tesisat Projesi: Turan Klima, Göken İnşaat
Akustik Projesi: Talayman Akustik
Yangın Güvenlik Danışmanı: Abdurrahman Kılıç
Fotoğraf: Sami Metin Uludoğan
Proje Başlangıç Yılı: 2012
Proje Bitiş Yılı: 2014
İnşaat Başlangıç Yılı: 2013
İnşaat Bitiş Yılı: 2014
Arsa Alanı: 4,660 m²
Toplam İnşaat Alanı: 7,800 m²