56/67
Paylaş
Resmi Orjinal Boyutunda Göster
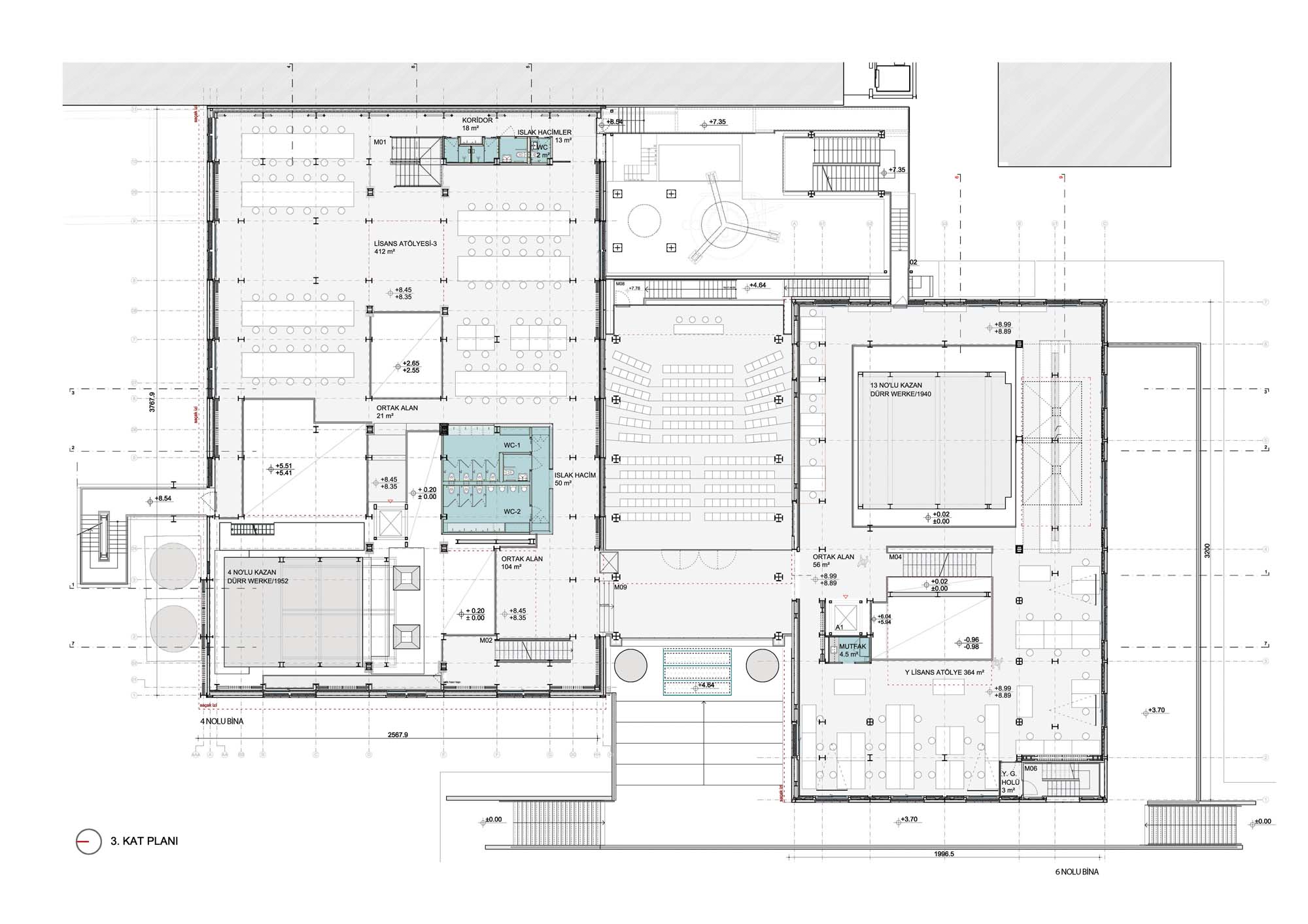
Santral 4 ve 6 nolu Kazan Daireleri Mimarlık Fakültesi ve Kütüphane Dönüşümü
Project Location: Eyüpsultan, İstanbul
Project Office: Nevzat Sayın Mimarlık Hizmetleri (NSMH)
Project Type: Higher Education Building, Library
Proje Tipi Grubu: Eğitim
Tasarım Ekibi: Nevzat Sayın, Selin Özkan, Gaye Keskin Erol, Serkan Çakıt, Sibel Özdoğan, Metehan Kahya
Employer: İstanbul Bilgi Üniversitesi
Consultant: Cem Altun, Sami Metin Uludoğan
Yardımcı: Lale Ceylan, Mehmet Hakan Akaydın
Ana Yüklenici: Erkay İnşaat
Interior Architecture: Nevzat Sayın Mimarlık Hizmetleri (NSMH)
Projcet Manager: Levent Şahin, Fatih Çakır, İstanbul Bilgi Üniversitesi, Teknik Müdürlük
Structural Project: Sigma Mühendislik
Mechanical Project: Proda Mühendislik
Electrical Project: Erdem Elektrik
Plumbing Project: Turan Klima, Göken İnşaat
Akustik Projesi: Talayman Akustik
Fire Safety Consultant: Abdurrahman Kılıç
Photography: Sami Metin Uludoğan
Project Start Date: 2012
Project End Date: 2014
Construction Start Date: 2013
Construction End Date: 2014
Building Plot Area: 4,660 m²
Total Construction Area: 7,800 m²