12/14
Paylaş
Resmi Orjinal Boyutunda Göster
EC3, BINAA, DOME+Partners
Project Location: Eminönü, İstanbul
Project Office: BINAA I Building Innovation Arts Architecture, EC3, Dome + Partners
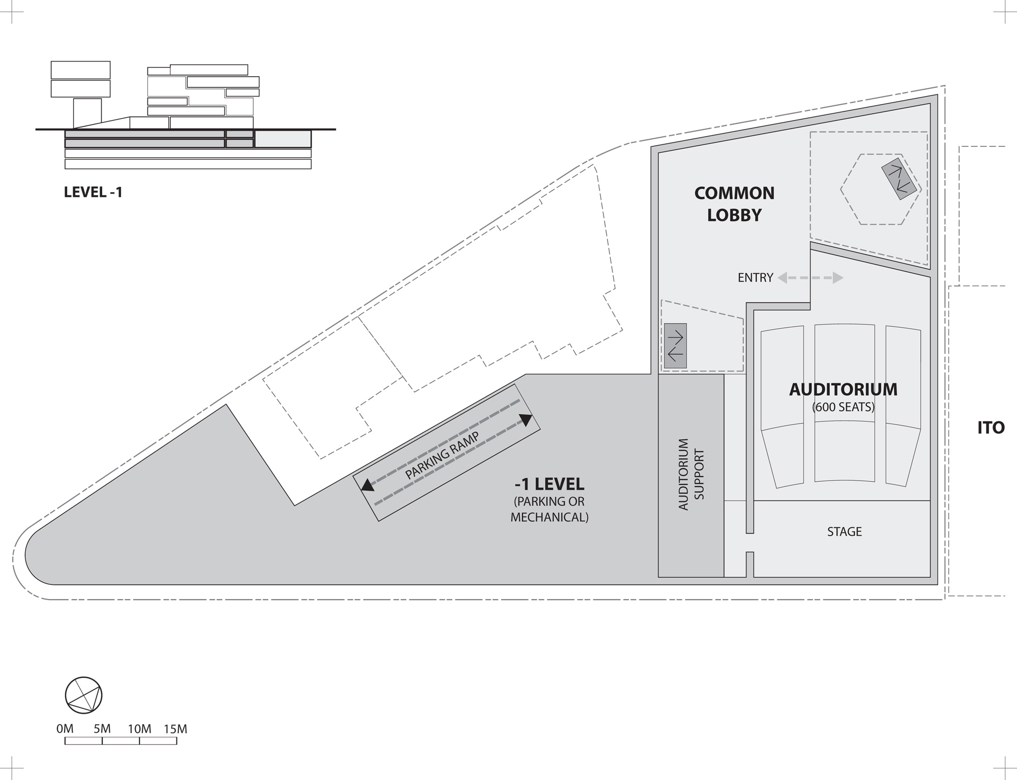
Project Type: Urban Design
Proje Tipi Grubu: Katılımcı
Tasarım Ekibi: Edwin Chan, Burak Pekoğlu, Carlos Beghetti, Büşra Koçak, Kübra Fatoğlu, T. Metin Asutay
Employer: İstanbul Ticaret Odası