9/14
Paylaş
Resmi Orjinal Boyutunda Göster
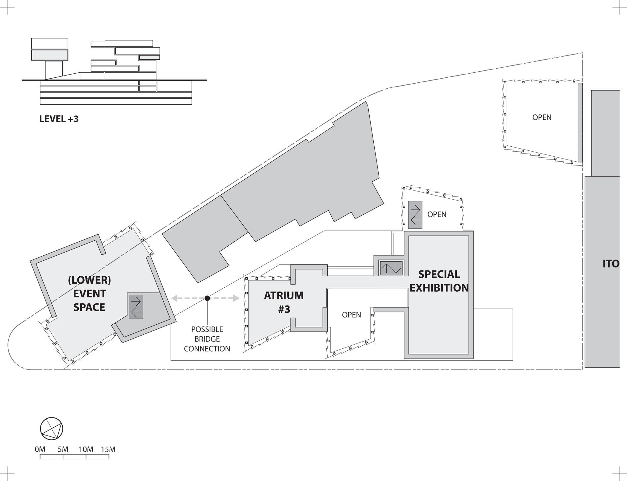
EC3, BINAA, DOME+Partners
Proje Yeri: Eminönü, İstanbul
Proje Ofisi: BINAA I Building Innovation Arts Architecture, EC3, Dome + Partners
Proje Tipi: Kentsel Tasarım
Proje Tipi Grubu: Katılımcı
Tasarım Ekibi: Edwin Chan, Burak Pekoğlu, Carlos Beghetti, Büşra Koçak, Kübra Fatoğlu, T. Metin Asutay
İşveren: İstanbul Ticaret Odası