3/12
Paylaş
Resmi Orjinal Boyutunda Göster
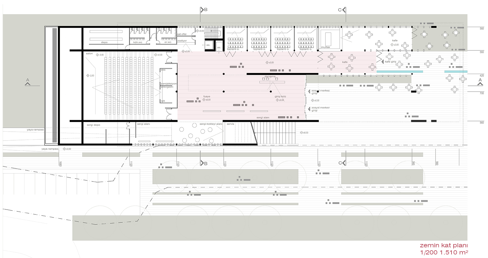
3. Mansiyon, Çanakkale Savaşı Araştırma Merkezi Mimari Proje Yarışması
Project Location: Çanakkale
Project Office: Kolektif Mimarlar
Project Type: Cultural Center
Proje Tipi Grubu: 3. Mansiyon
Tasarım Ekibi: Tuna Han Koç, Barış Demir, Sıddık Güvendi
Yardımcı: Dilan Şenses