4/12
Paylaş
Resmi Orjinal Boyutunda Göster
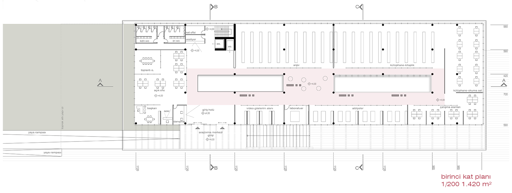
3. Mansiyon, Çanakkale Savaşı Araştırma Merkezi Mimari Proje Yarışması
Proje Yeri: Çanakkale
Proje Ofisi: Kolektif Mimarlar
Proje Tipi: Kültür Merkezi
Proje Tipi Grubu: 3. Mansiyon
Tasarım Ekibi: Tuna Han Koç, Barış Demir, Sıddık Güvendi
Yardımcı: Dilan Şenses