14/25
Paylaş
Resmi Orjinal Boyutunda Göster
Başlığı girin
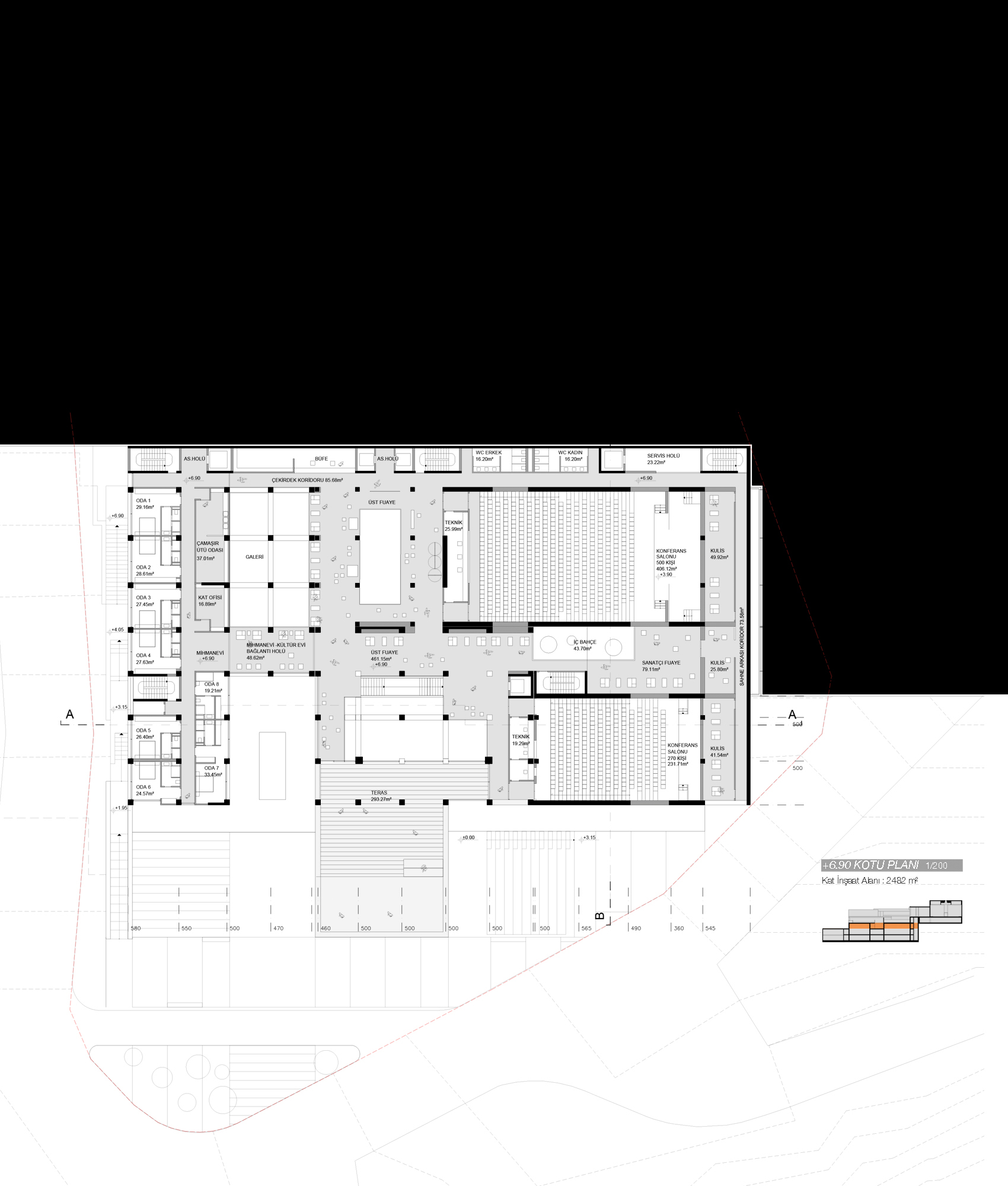
Project Location: İstanbul, Maltepe, Gülsuyu Mahallesi
Project Type: Cem House, Cultural Center
Proje Tipi Grubu: Eşdeğer Mansiyon
Tasarım Ekibi: Mehmet Metin Polat, Bilge Altuğ, Gökhan Turan
Consultant: Zeynel Lale Eke, Ömer Cenk Tiftikçigil, İbrahim Tolga Çelik, Sezgin Karaman
Yardımcı: Nurhayat Öz, Bengi Altuğ, Elif Aksayan