16/25
Paylaş
Resmi Orjinal Boyutunda Göster
Başlığı girin
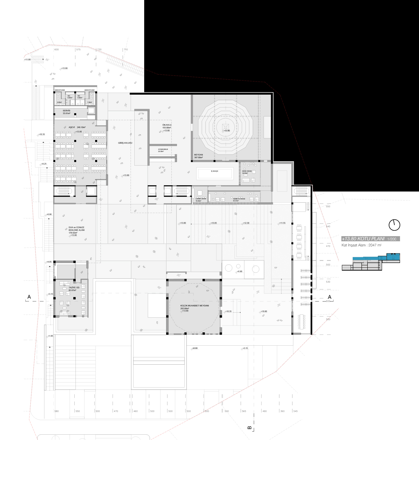
Proje Yeri: İstanbul, Maltepe, Gülsuyu Mahallesi
Proje Tipi: Cemevi, Kültür Merkezi
Proje Tipi Grubu: Eşdeğer Mansiyon
Tasarım Ekibi: Mehmet Metin Polat, Bilge Altuğ, Gökhan Turan
Danışman: Zeynel Lale Eke, Ömer Cenk Tiftikçigil, İbrahim Tolga Çelik, Sezgin Karaman
Yardımcı: Nurhayat Öz, Bengi Altuğ, Elif Aksayan