51/64
Paylaş
Resmi Orjinal Boyutunda Göster
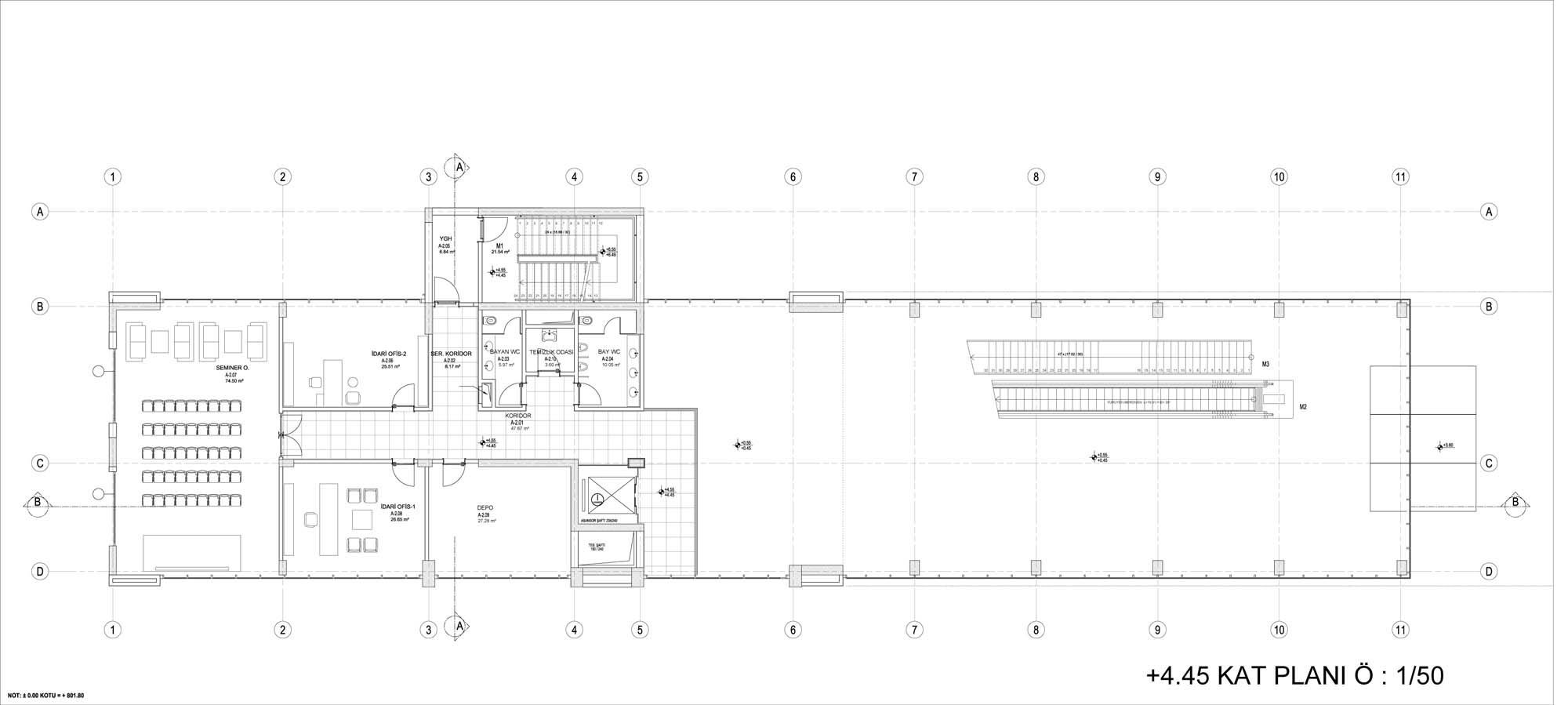
Bozüyük YHT İstasyon ve Gar Tesisleri
Project Location: Bozüyük, Bilecik
Project Office: SPE Mimarlık
Project Type: Railway Buildings
Proje Tipi Grubu: Ulaşım
Tasarım Ekibi: Feyyaz Aysoy
Employer: Türkiye Cumhuriyeti Devlet Demiryolları (TCDD)
Ana Yüklenici: Elit Proje
Peyzaj Mimarlığı: SPE Mimarlık
Project Start Date: 2012
Project End Date: 2013
Construction Start Date: 2013
Construction End Date: 2014
Building Plot Area: 60,000 m²
Total Construction Area: 5,060 m2