60/64
Paylaş
Resmi Orjinal Boyutunda Göster
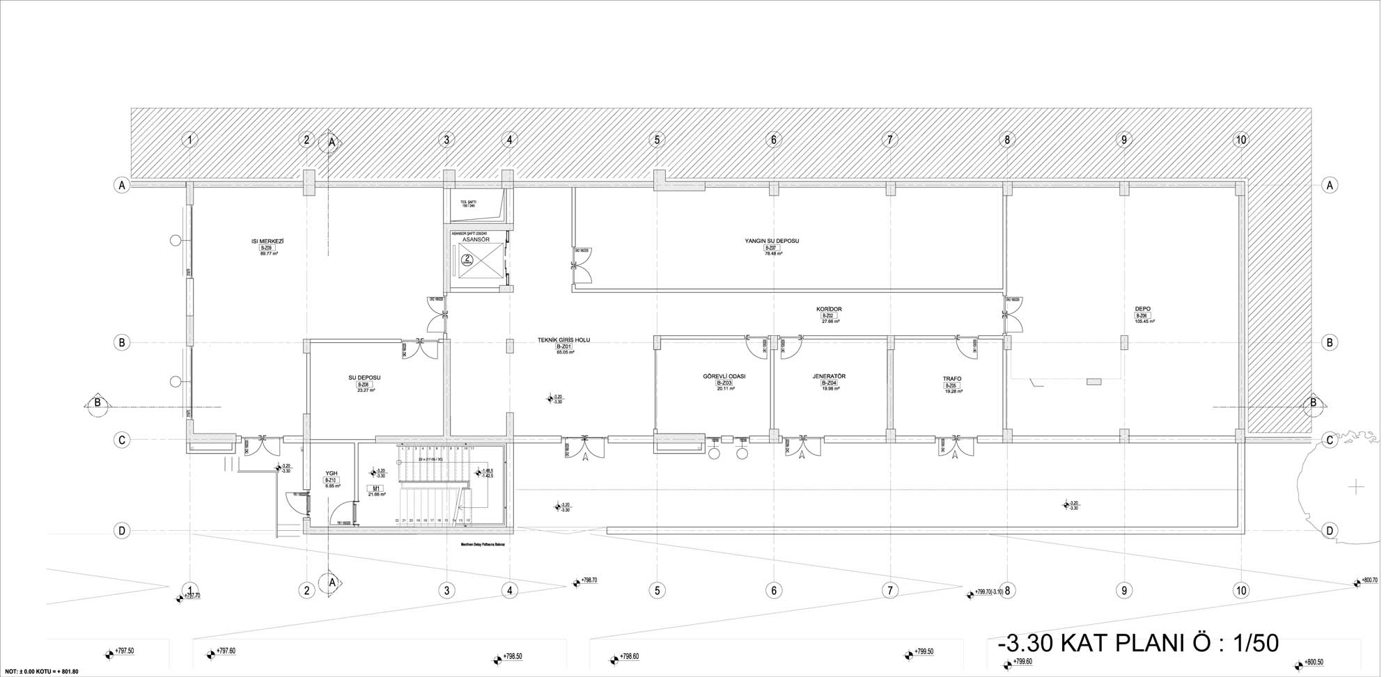
Bozüyük YHT İstasyon ve Gar Tesisleri
Proje Yeri: Bozüyük, Bilecik
Proje Ofisi: SPE Mimarlık
Proje Tipi: Demiryolu Yapıları
Proje Tipi Grubu: Ulaşım
Tasarım Ekibi: Feyyaz Aysoy
İşveren: Türkiye Cumhuriyeti Devlet Demiryolları (TCDD)
Ana Yüklenici: Elit Proje
Peyzaj Mimarlığı: SPE Mimarlık
Proje Başlangıç Yılı: 2012
Proje Bitiş Yılı: 2013
İnşaat Başlangıç Yılı: 2013
İnşaat Bitiş Yılı: 2014
Arsa Alanı: 60,000 m²
Toplam İnşaat Alanı: 5,060 m2