37/38
Paylaş
Resmi Orjinal Boyutunda Göster
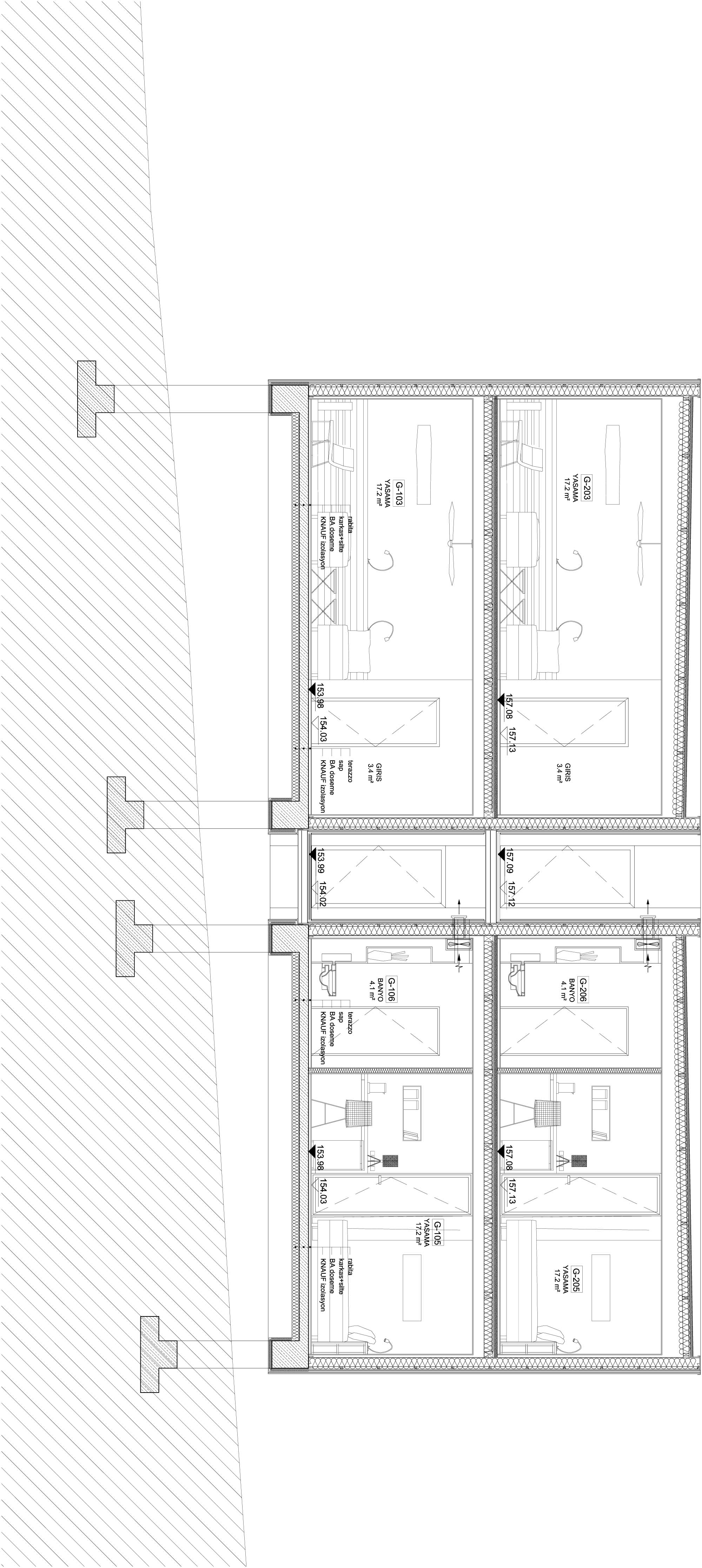
Narköy
Project Location: Kocaeli (İzmit), Kandıra
Project Office: Emir Drahsan Architecture / Planning
Project Type: Hotel / Motel, Ekolojik Mimarlık
Proje Tipi Grubu: Konaklama
Tasarım Ekibi: Emir Drahşan, Alexandre Schrepfer
Employer: Nar Egitim Merkezi
Yardımcı: Beste Kuşçu, Marion Notter, Guillaume Dufilho, Eti Kastoryano, Eric Boyer, Carla Arrabito
Ana Yüklenici: Odak İnce Yapı
Peyzaj Mimarlığı: Dilek Ayman, Pil Tasarım
Interior Architecture: Beste Kuşçu
Structural Project: Yapı Akademisi, GMGB
Mechanical Project: Civa Mühendislik
Electrical Project: Latek İnşaat Elektrik Proje
Project Start Date: 2008
Project End Date: 2010
Construction Start Date: 2012
Construction End Date: 2014
Building Plot Area: 7,000 m²
Total Construction Area: 2,500 m²