38/38
Paylaş
Resmi Orjinal Boyutunda Göster
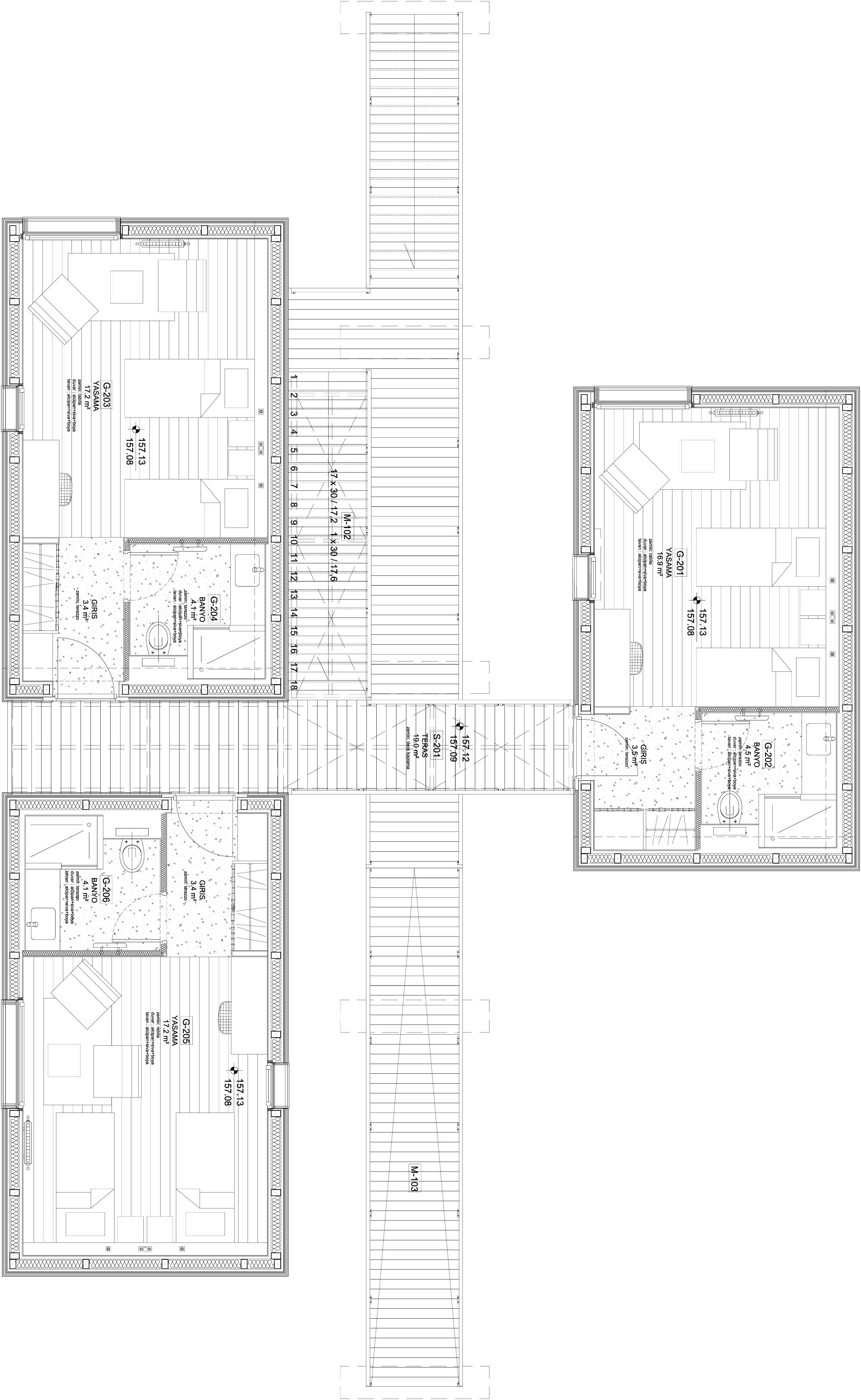
Narköy
Proje Yeri: Kocaeli (İzmit), Kandıra
Proje Ofisi: Emir Drahsan Architecture / Planning
Proje Tipi: Otel / Motel, Ekolojik Mimarlık
Proje Tipi Grubu: Konaklama
Tasarım Ekibi: Emir Drahşan, Alexandre Schrepfer
İşveren: Nar Egitim Merkezi
Yardımcı: Beste Kuşçu, Marion Notter, Guillaume Dufilho, Eti Kastoryano, Eric Boyer, Carla Arrabito
Ana Yüklenici: Odak İnce Yapı
Peyzaj Mimarlığı: Dilek Ayman, Pil Tasarım
İç Mekan Projesi: Beste Kuşçu
Statik Projesi: Yapı Akademisi, GMGB
Mekanik Projesi: Civa Mühendislik
Elektrik Projesi: Latek İnşaat Elektrik Proje
Proje Başlangıç Yılı: 2008
Proje Bitiş Yılı: 2010
İnşaat Başlangıç Yılı: 2012
İnşaat Bitiş Yılı: 2014
Arsa Alanı: 7,000 m²
Toplam İnşaat Alanı: 2,500 m²