3/13
Paylaş
Resmi Orjinal Boyutunda Göster
3_odul_bodto
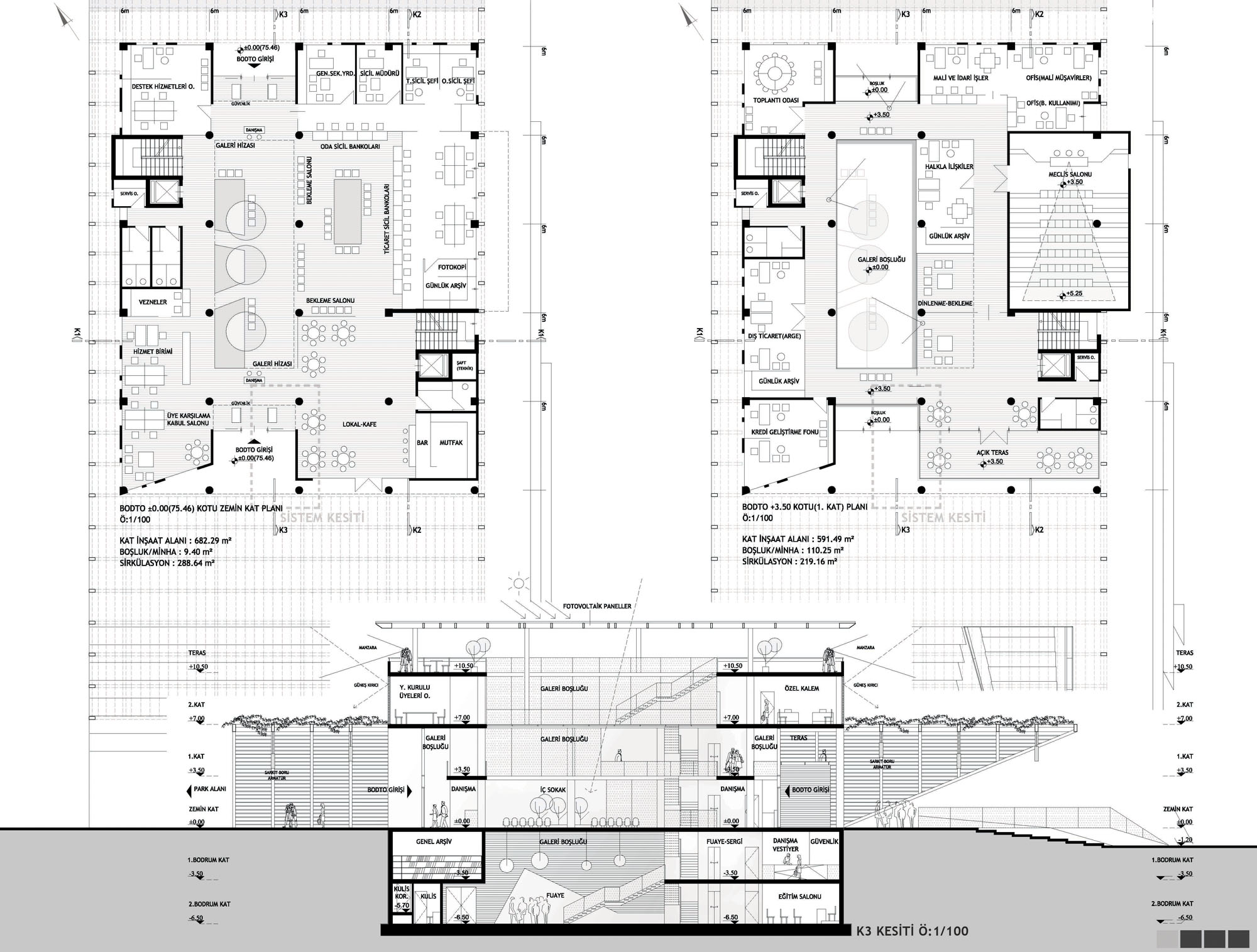
Project Location: Bodrum
Project Type: Offices
Proje Tipi Grubu: 3. Ödül
Tasarım Ekibi: Selda Nacar, Aygül Ceylan, Emrah Bal