5/13
Paylaş
Resmi Orjinal Boyutunda Göster
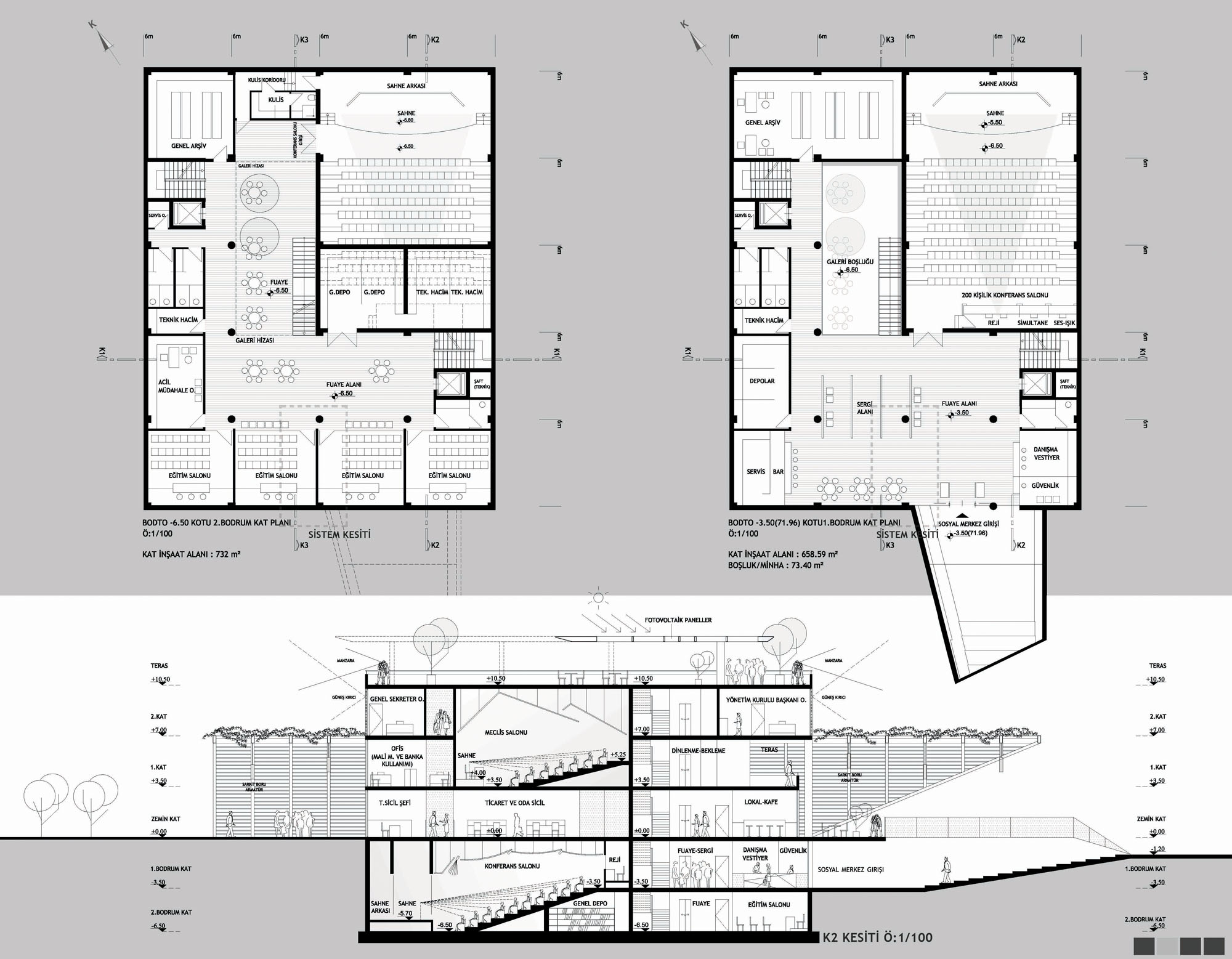
3_odul_bodto
Proje Yeri: Bodrum
Proje Tipi: Ofis
Proje Tipi Grubu: 3. Ödül
Tasarım Ekibi: Selda Nacar, Aygül Ceylan, Emrah Bal