35/38
Paylaş
Resmi Orjinal Boyutunda Göster
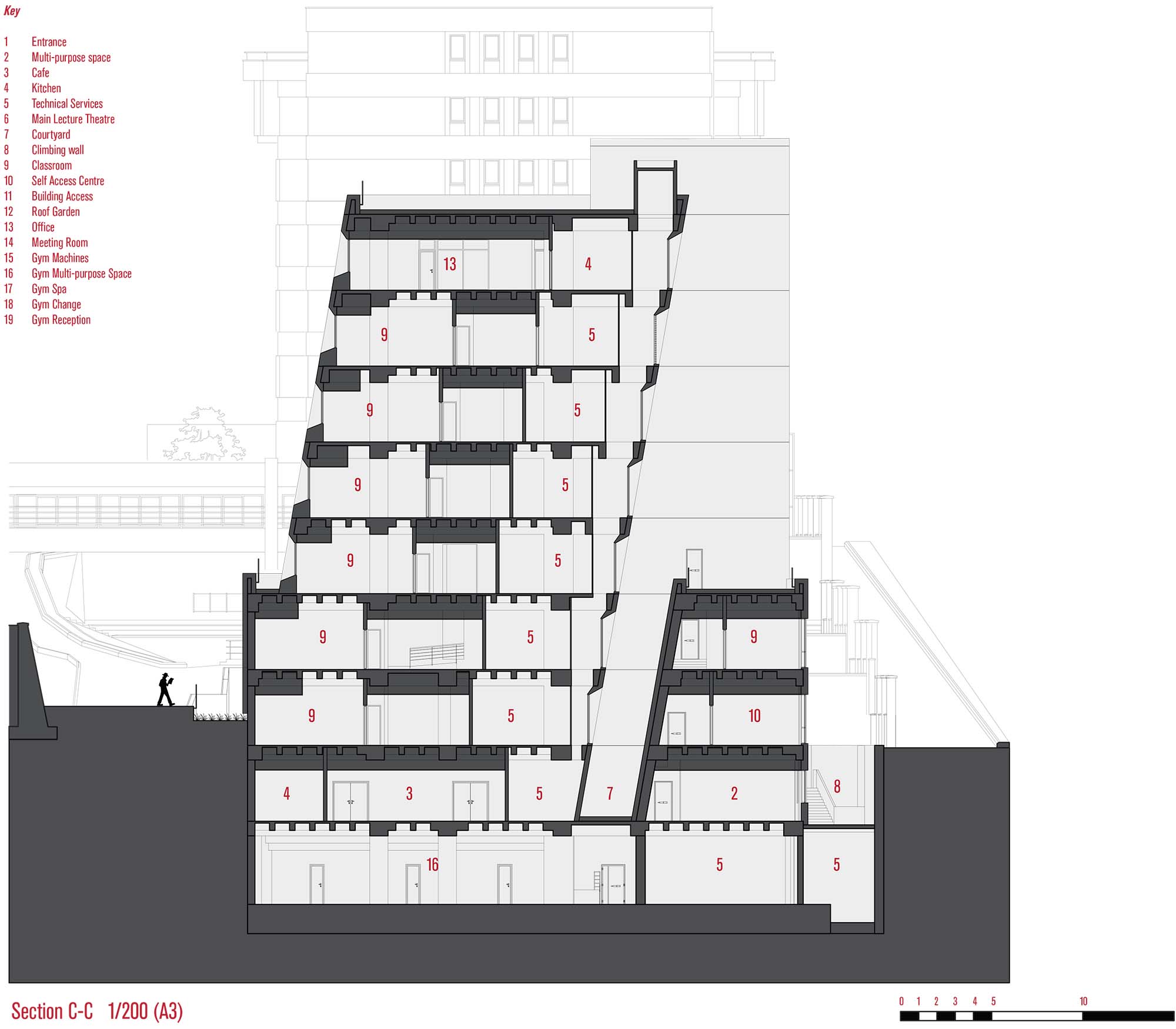
İzmir Ekonomi Üniversitesi Yabancı Diller Yüksekokulu
Proje Yeri: Balçova, İzmir
Proje Ofisi: İzmir Ekonomi Üniversitesi Proje İnşaat Müdürlüğü
Proje Tipi: Yüksek Öğretim Yapısı
Proje Tipi Grubu: Eğitim
Tasarım Ekibi: Özlem Akın, Gudjon Thor Erlendsson, Michael Edward Young
Mimari Proje Ekibi: H. Hüsnü Alpan, Yağmur Arıcı, Mehtap Altuğ
İşveren: İzmir Ekonomi Üniversitesi
Ana Yüklenici: Kuryap İnşaat
Proje Yöneticisi: H. Hüsnü Alpan
Konsept Tasarımı: Özlem Akın, Gudjon Thor Erlendsson, Michael Edward Young
Uygulama Projesi: H. Hüsnü Alpan, Yağmur Arıcı, Mehtap Altuğ, Berna Kaya
Grafik Tasarım: Jörn Fröchlich, İpek Ünal
Statik Projesi: Ardalı İnşaat
Mekanik Projesi: Egetek Makina
Elektrik Projesi: Özyavru Elektrik
Fotoğraf: Argun Tanrıverdi
Mimari Mesleki Kontrollük: Mehtap Altuğ
Şantiye Yöneticisi: Ramazan Hacıoğlu
Proje Başlangıç Yılı: 2010
Proje Bitiş Yılı: 2012
İnşaat Başlangıç Yılı: 2014
İnşaat Bitiş Yılı: 2015
Arsa Alanı: 1.345 m²
Toplam İnşaat Alanı: 9.646 m2