36/38
Paylaş
Resmi Orjinal Boyutunda Göster
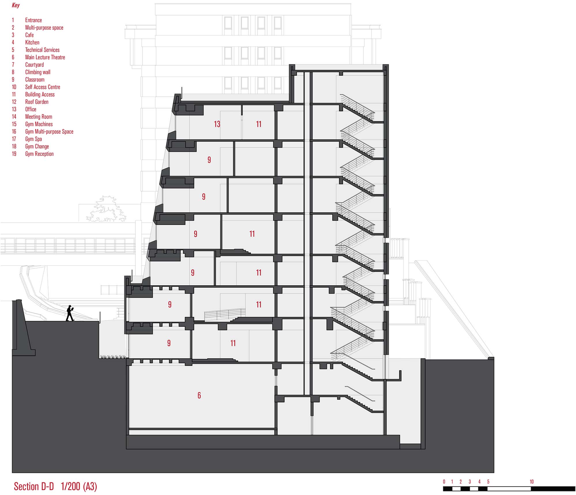
İzmir Ekonomi Üniversitesi Yabancı Diller Yüksekokulu
Project Location: Balçova, İzmir
Project Office: İzmir Ekonomi Üniversitesi Proje İnşaat Müdürlüğü
Project Type: Higher Education Building
Proje Tipi Grubu: Eğitim
Tasarım Ekibi: Özlem Akın, Gudjon Thor Erlendsson, Michael Edward Young
Architectural Project Team: H. Hüsnü Alpan, Yağmur Arıcı, Mehtap Altuğ
Employer: İzmir Ekonomi Üniversitesi
Ana Yüklenici: Kuryap İnşaat
Projcet Manager: H. Hüsnü Alpan
Concept Design: Özlem Akın, Gudjon Thor Erlendsson, Michael Edward Young
Construction Drawings: H. Hüsnü Alpan, Yağmur Arıcı, Mehtap Altuğ, Berna Kaya
Grafik Tasarım: Jörn Fröchlich, İpek Ünal
Structural Project: Ardalı İnşaat
Mechanical Project: Egetek Makina
Electrical Project: Özyavru Elektrik
Photography: Argun Tanrıverdi
Architectural Supervision: Mehtap Altuğ
Construction Site Manager: Ramazan Hacıoğlu
Project Start Date: 2010
Project End Date: 2012
Construction Start Date: 2014
Construction End Date: 2015
Building Plot Area: 1.345 m²
Total Construction Area: 9.646 m2