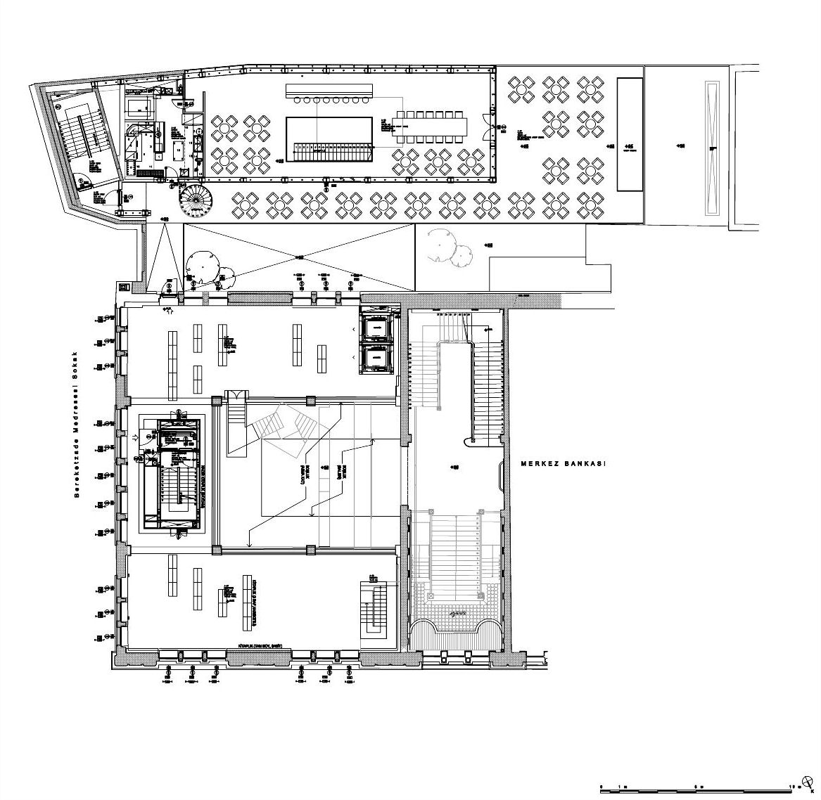
Asma Kat Planı
13/26
Paylaş
Resmi Orjinal Boyutunda Göster
SALT Galata
Fotoğraflar: Cemal Emden
Proje Ofisi: Autoban, Mimarlar ve Han Tümertekin, SANALarc Mimarlık, Araştırma ve Kentsel Tasarım, Superpool, ZOOM / TPU
Proje Tipi: Kütüphane, Sergi Mekanı / Galeri
Proje Tipi Grubu: Kültür
Tasarım Ekibi: Arif Özden, Edhem Eldem, Han Tümertekin, Koray Özgen, Ömer Ünal, Tanju Özelgin, Zehra Uçar
İşveren: Garanti Bankası
Proje Başlangıç Yılı: 2011
Proje Bitiş Yılı: 2011
İnşaat Başlangıç Yılı: 2011
İnşaat Bitiş Yılı: 2011