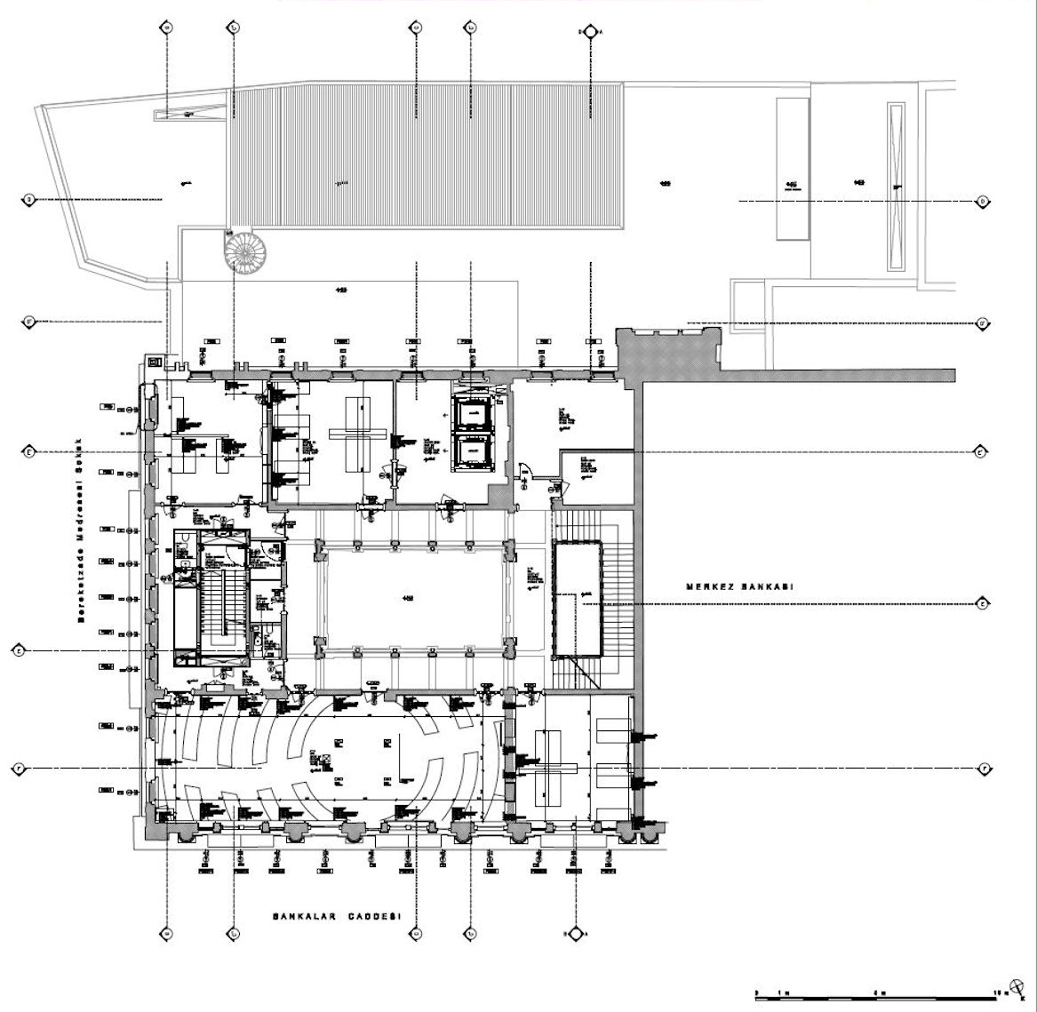
2. Kat Planı
15/26
Paylaş
Resmi Orjinal Boyutunda Göster
SALT Galata
Fotoğraflar: Cemal Emden
Project Office: Autoban, Mimarlar ve Han Tümertekin, SANALarc Mimarlık, Araştırma ve Kentsel Tasarım, Superpool, ZOOM / TPU
Project Type: Library, Exhibition Hall / Gallery
Proje Tipi Grubu: Kültür
Tasarım Ekibi: Arif Özden, Edhem Eldem, Han Tümertekin, Koray Özgen, Ömer Ünal, Tanju Özelgin, Zehra Uçar
Employer: Garanti Bankası
Project Start Date: 2011
Project End Date: 2011
Construction Start Date: 2011
Construction End Date: 2011