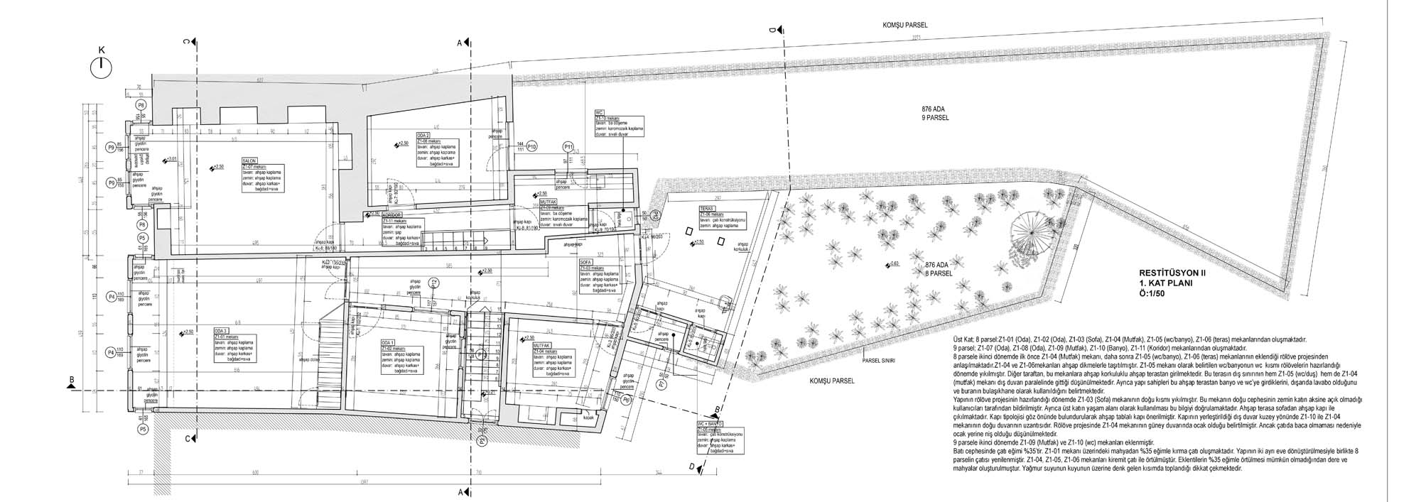
18/35
Paylaş
Resmi Orjinal Boyutunda Göster
AHC Evi
Project Location: Muratpaşa, Antalya
Project Office: Rem Mimarlık
Project Type: Single House
Proje Tipi Grubu: Konut
Tasarım Ekibi: Zeynep Esengil Ceylan
Employer: Haluk Çerçiler
Ana Yüklenici: Fahri Göl, Arı İnşaat
Interior Architecture: Zeynep Esengil Ceylan
Structural Project: Akın Akıncı
Mechanical Project: Hüseyin Canöztürk
Electrical Project: Akif Yayan
Project Start Date: 2014
Project End Date: 2014
Construction Start Date: 2014
Construction End Date: 2015
Total Construction Area: 175 m²