24/35
Paylaş
Resmi Orjinal Boyutunda Göster
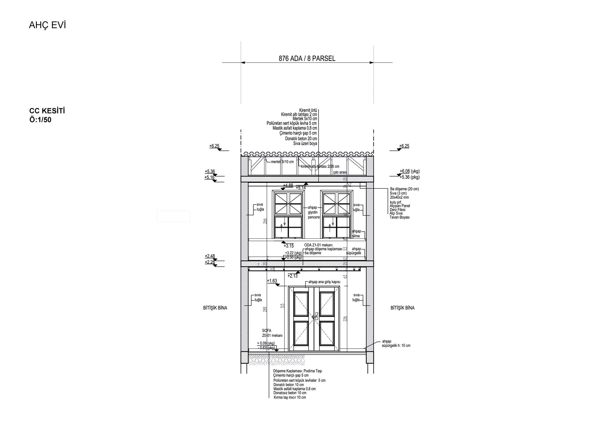
AHC Evi
Proje Yeri: Muratpaşa, Antalya
Proje Ofisi: Rem Mimarlık
Proje Tipi: Tek Ev / Villa
Proje Tipi Grubu: Konut
Tasarım Ekibi: Zeynep Esengil Ceylan
İşveren: Haluk Çerçiler
Ana Yüklenici: Fahri Göl, Arı İnşaat
İç Mekan Projesi: Zeynep Esengil Ceylan
Statik Projesi: Akın Akıncı
Mekanik Projesi: Hüseyin Canöztürk
Elektrik Projesi: Akif Yayan
Proje Başlangıç Yılı: 2014
Proje Bitiş Yılı: 2014
İnşaat Başlangıç Yılı: 2014
İnşaat Bitiş Yılı: 2015
Toplam İnşaat Alanı: 175 m²