30/37
Paylaş
Resmi Orjinal Boyutunda Göster
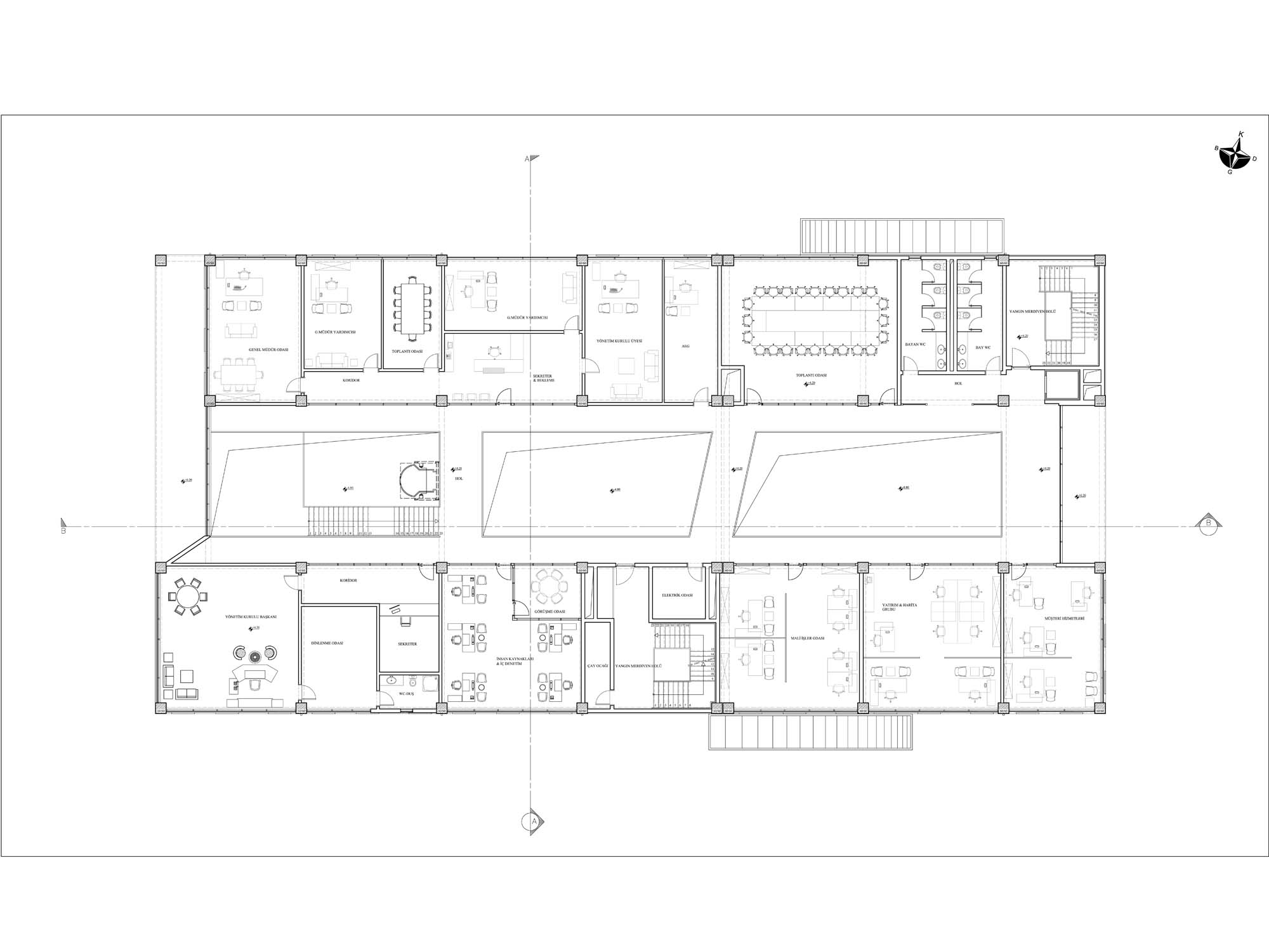
AGDAŞ Genel Müdürlük Binası
Proje Yeri: Adapazarı (Sakarya)
Proje Ofisi: SBL Mimarlık ve Tasarım
Proje Tipi: Ofis
Proje Tipi Grubu: Ticari
Tasarım Ekibi: Çetin Öztürk, Duygu Aslan, Hacer Bozkurt, Nurbanu Büyükgöz
Mimari Proje Ekibi: Çetin Öztürk, Duygu Aslan, Hacer Bozkurt, Nurbanu Büyükgöz, Emre Sınırcı
İşveren: Adapazarı Gaz Dağıtım AŞ
Danışman: Çetin Öztürk
Yardımcı: Hacer Bozkurt, Nurbanu Büyükgöz, Emre Sınırcı, Bülent Saydam
Ana Yüklenici: Erdem Holding
Peyzaj Mimarlığı: SBL Mimarlık ve Tasarım
İç Mekan Projesi: SBL Mimarlık ve Tasarım
Proje Yöneticisi: Duygu Aslan
Konsept Tasarımı: SBL Mimarlık ve Tasarım
Uygulama Projesi: SBL Mimarlık ve Tasarım
Cephe Tasarımı: Hacer Bozkurt, Nurbanu Büyükgöz, Emre Sınırcı
Aydınlatma Projesi: SBL Mimarlık ve Tasarım
Statik Projesi: SBL Mimarlık ve Tasarım
Mekanik Projesi: SBL Mimarlık ve Tasarım
Elektrik Projesi: SBL Mimarlık ve Tasarım
Tesisat Projesi: SBL Mimarlık ve Tasarım
Çelik Projesi: SBL Mimarlık ve Tasarım
Altyapı Projesi: SBL Mimarlık ve Tasarım
Akustik Projesi: SBL Mimarlık ve Tasarım
Yangın Tahliye Projesi: SBL Mimarlık ve Tasarım
Fotoğraf: Hacer Bozkurt
Şantiye Yöneticisi: Erdem Holding
Proje Başlangıç Yılı: 2013
Proje Bitiş Yılı: 2014
İnşaat Başlangıç Yılı: 2014
İnşaat Bitiş Yılı: 2015
Arsa Alanı: 3,982 m²
Toplam İnşaat Alanı: 4,812 m²