37/37
Paylaş
Resmi Orjinal Boyutunda Göster
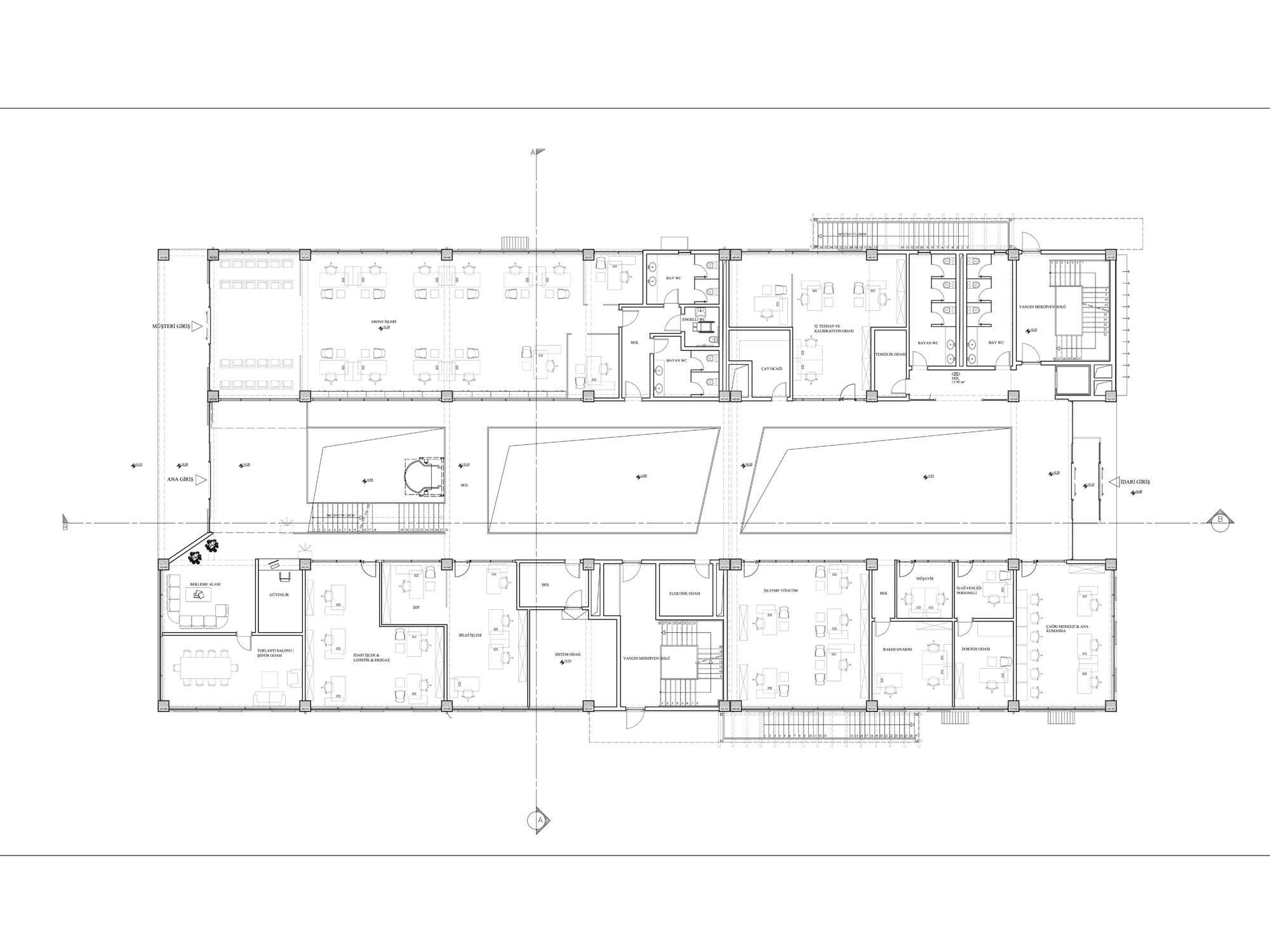
AGDAŞ Genel Müdürlük Binası
Project Location: Adapazarı (Sakarya)
Project Office: SBL Mimarlık ve Tasarım
Project Type: Offices
Proje Tipi Grubu: Commercial
Tasarım Ekibi: Çetin Öztürk, Duygu Aslan, Hacer Bozkurt, Nurbanu Büyükgöz
Architectural Project Team: Çetin Öztürk, Duygu Aslan, Hacer Bozkurt, Nurbanu Büyükgöz, Emre Sınırcı
Employer: Adapazarı Gaz Dağıtım AŞ
Consultant: Çetin Öztürk
Yardımcı: Hacer Bozkurt, Nurbanu Büyükgöz, Emre Sınırcı, Bülent Saydam
Ana Yüklenici: Erdem Holding
Peyzaj Mimarlığı: SBL Mimarlık ve Tasarım
Interior Architecture: SBL Mimarlık ve Tasarım
Projcet Manager: Duygu Aslan
Concept Design: SBL Mimarlık ve Tasarım
Construction Drawings: SBL Mimarlık ve Tasarım
Facade Design: Hacer Bozkurt, Nurbanu Büyükgöz, Emre Sınırcı
Lighting Project: SBL Mimarlık ve Tasarım
Structural Project: SBL Mimarlık ve Tasarım
Mechanical Project: SBL Mimarlık ve Tasarım
Electrical Project: SBL Mimarlık ve Tasarım
Plumbing Project: SBL Mimarlık ve Tasarım
Çelik Projesi: SBL Mimarlık ve Tasarım
Altyapı Projesi: SBL Mimarlık ve Tasarım
Akustik Projesi: SBL Mimarlık ve Tasarım
Yangın Tahliye Projesi: SBL Mimarlık ve Tasarım
Photography: Hacer Bozkurt
Construction Site Manager: Erdem Holding
Project Start Date: 2013
Project End Date: 2014
Construction Start Date: 2014
Construction End Date: 2015
Building Plot Area: 3,982 m²
Total Construction Area: 4,812 m²