8/13
Paylaş
Resmi Orjinal Boyutunda Göster
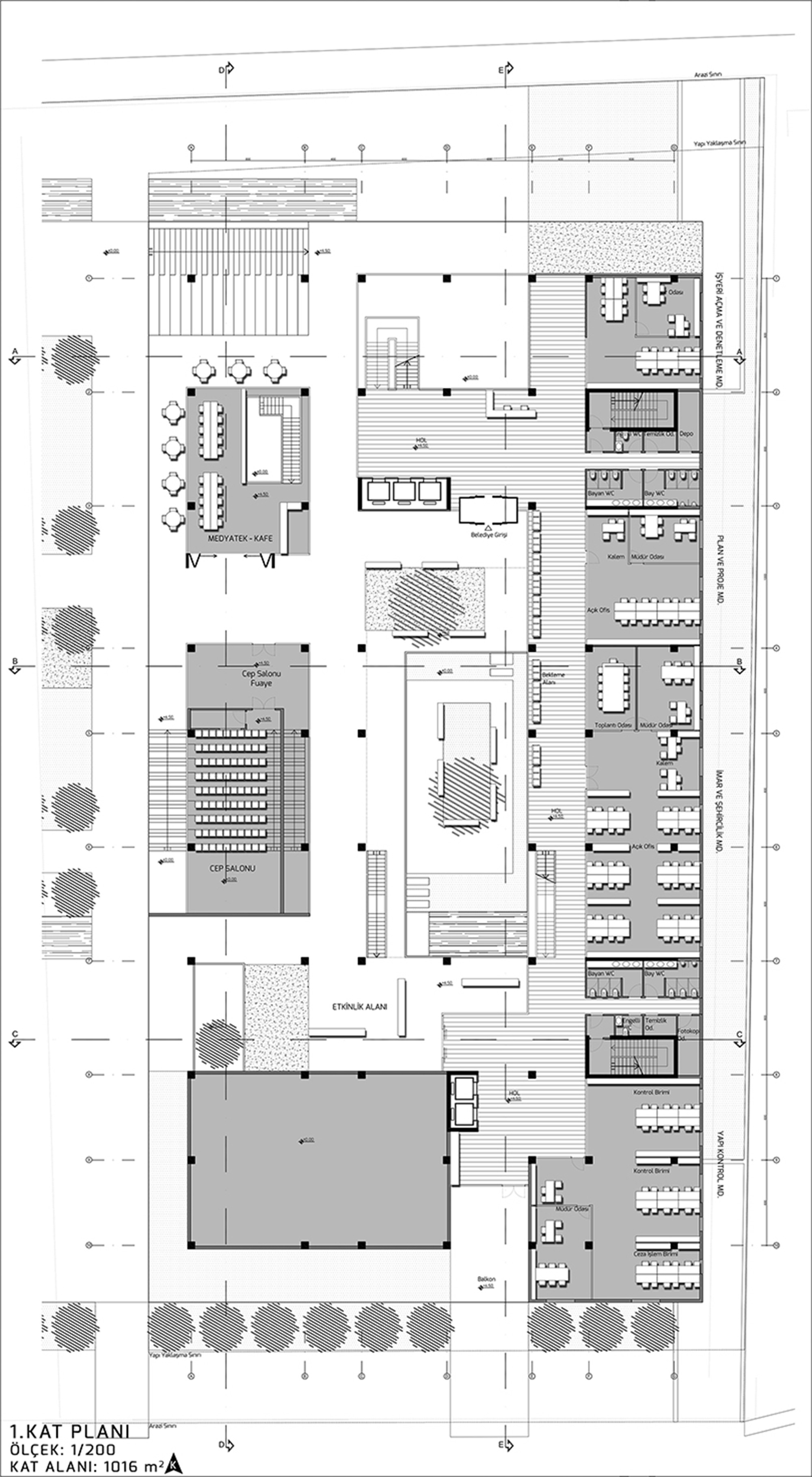
1. Ödül, Van İpekyolu Belediye Merkezi Mimari Proje Yarışması
Project Location: Van
Project Office: Stüdyo501
Project Type: Belediye Hizmet Binası
Proje Tipi Grubu: 1. Ödül
Tasarım Ekibi: Cenk Çeşmeli
Consultant: Tolga Çeşmeli, Naz Damaklı, Yıldıray Özmen, Gizem Güner
Yardımcı: Müge Erkılıç, Reva Şermet