9/13
Paylaş
Resmi Orjinal Boyutunda Göster
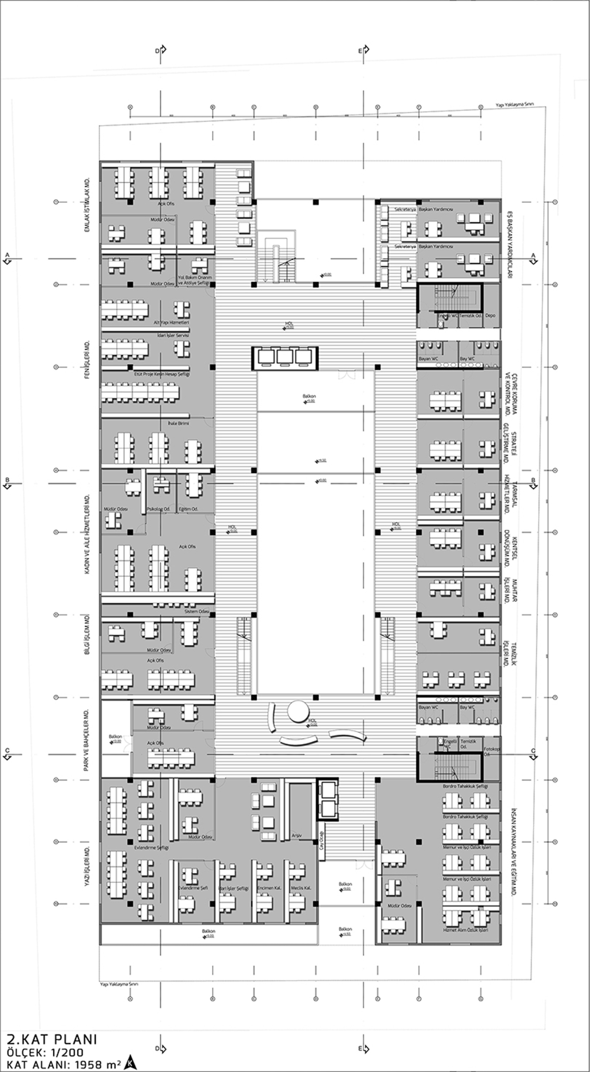
1. Ödül, Van İpekyolu Belediye Merkezi Mimari Proje Yarışması
Proje Yeri: Van
Proje Ofisi: Stüdyo501
Proje Tipi: Belediye Hizmet Binası
Proje Tipi Grubu: 1. Ödül
Tasarım Ekibi: Cenk Çeşmeli
Danışman: Tolga Çeşmeli, Naz Damaklı, Yıldıray Özmen, Gizem Güner
Yardımcı: Müge Erkılıç, Reva Şermet