15/19
Paylaş
Resmi Orjinal Boyutunda Göster
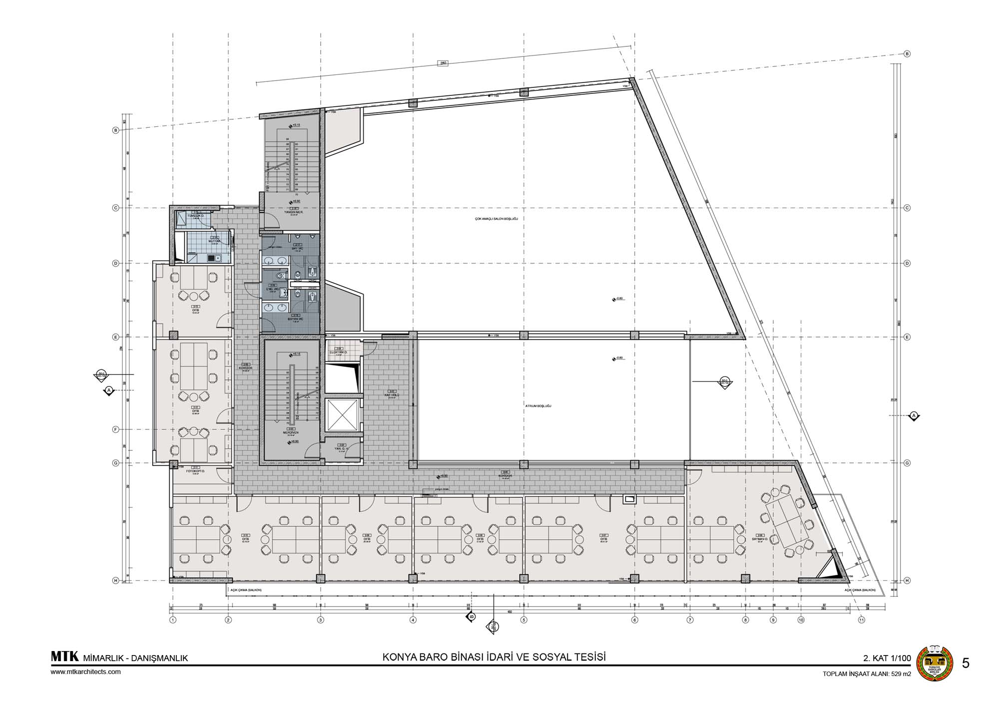
Konya Baro Binası
Project Location: Konya
Project Office: MTK Mimarlık-Danışmanlık
Project Type: Offices
Proje Tipi Grubu: Kamu
Tasarım Ekibi: Mert Kayasü, Elif Köktaş, Sedat Acar, Gamze Uzunpınar
Employer: Türkiye Barolar Birliği
Ana Yüklenici: DEYA İnşaat
Projcet Manager: Mert Kayasü
Structural Project: ATABAR Mühendislik
Mechanical Project: ATABAR Mühendislik
Electrical Project: ATABAR Mühendislik
Photography: Mert Kayasü
Project Start Date: 2012,
Project End Date: 2012
Construction Start Date: 2013
Construction End Date: 2015
Building Plot Area: 2,250 m²
Total Construction Area: 3,800 m²