16/19
Paylaş
Resmi Orjinal Boyutunda Göster
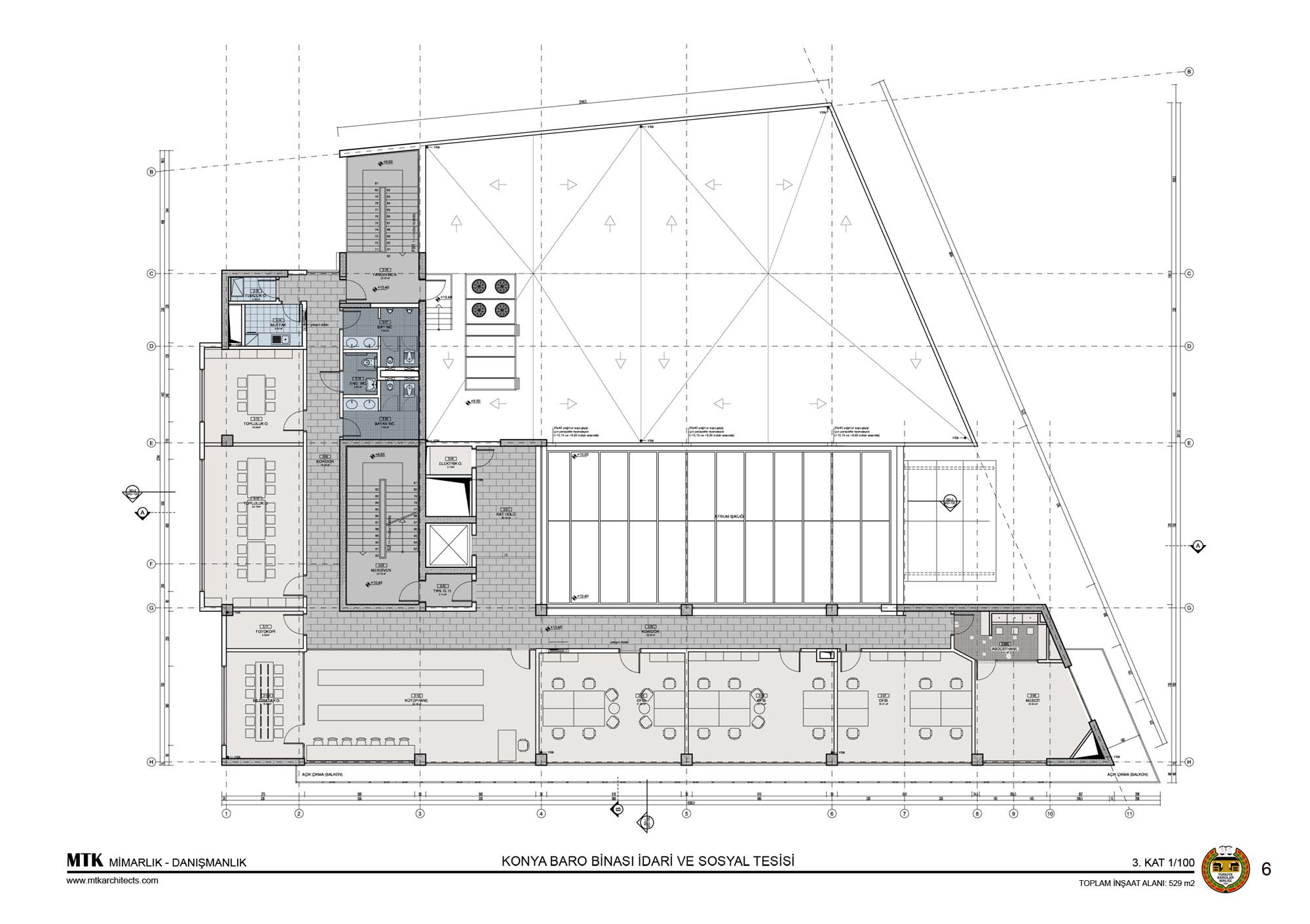
Konya Baro Binası
Proje Yeri: Konya
Proje Ofisi: MTK Mimarlık-Danışmanlık
Proje Tipi: Ofis
Proje Tipi Grubu: Kamu
Tasarım Ekibi: Mert Kayasü, Elif Köktaş, Sedat Acar, Gamze Uzunpınar
İşveren: Türkiye Barolar Birliği
Ana Yüklenici: DEYA İnşaat
Proje Yöneticisi: Mert Kayasü
Statik Projesi: ATABAR Mühendislik
Mekanik Projesi: ATABAR Mühendislik
Elektrik Projesi: ATABAR Mühendislik
Fotoğraf: Mert Kayasü
Proje Başlangıç Yılı: 2012,
Proje Bitiş Yılı: 2012
İnşaat Başlangıç Yılı: 2013
İnşaat Bitiş Yılı: 2015
Arsa Alanı: 2,250 m²
Toplam İnşaat Alanı: 3,800 m²