29/38
Paylaş
Resmi Orjinal Boyutunda Göster
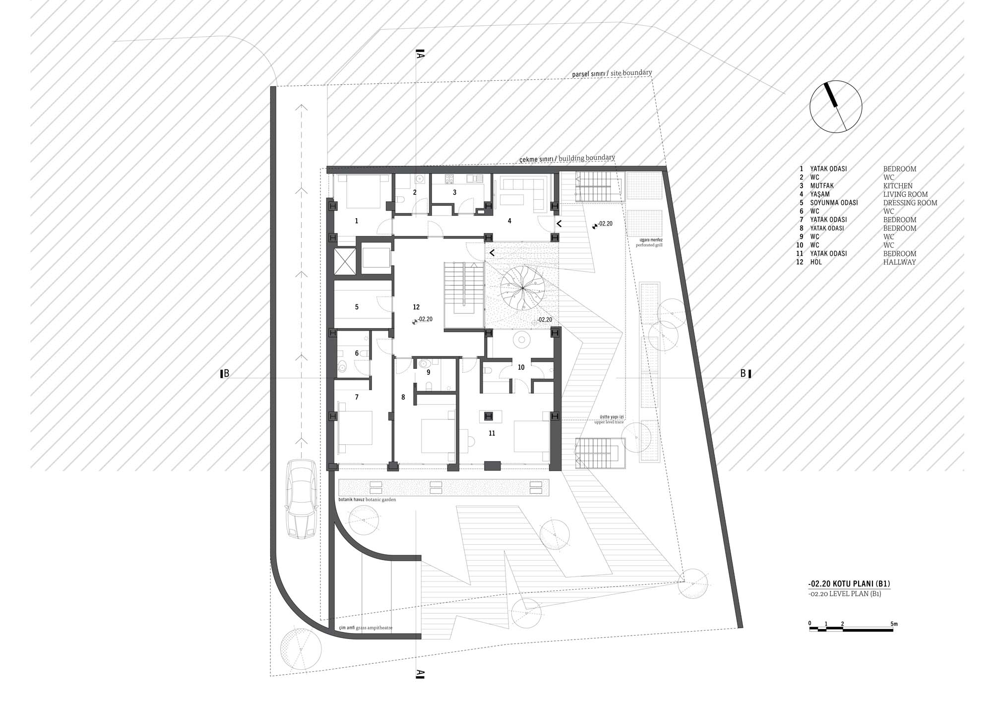
Kartal Haftasonu Evi
Project Location: Kartal, İstanbul
Project Office: Tamirci Architects
Project Type: Single House
Proje Tipi Grubu: Konut
Tasarım Ekibi: Can Tamirci
Employer: Tadım Gıda
Yardımcı: Pınar Aydın, Sevda Ağcakale, Sezin Taner
Ana Yüklenici: Sena İnşaat ve Makina, Tuna Yapı
Interior Architecture: Esat Fişek İç Mimarlık
Projcet Manager: Özden Yaman
Grafik Tasarım: Dilara Sezgin
Structural Project: Sigma Mühendislik
Mechanical Project: Deko Mühendislik
Electrical Project: Atlantis Proje
Model: 4. Boyut
Photography: ALTKAT Architectural Photography, İbrahim Özbunar
Architectural Supervision: Tamirci Architects
Construction Site Manager: Metin Yıldız
Project Start Date: 2012
Project End Date: 2013
Construction Start Date: 2013
Construction End Date: 2015
Building Plot Area: 874 m2
Total Construction Area: 1,165 m2