30/38
Paylaş
Resmi Orjinal Boyutunda Göster
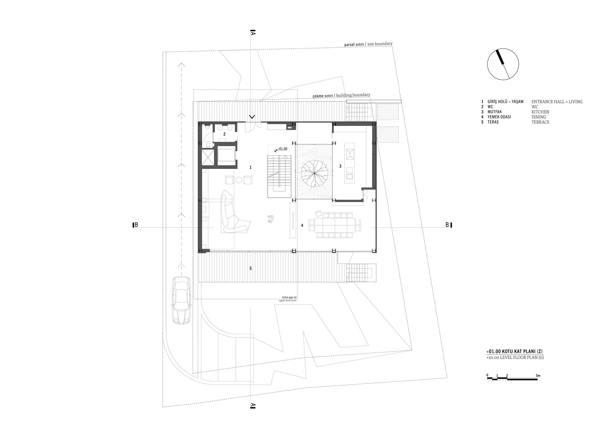
Kartal Haftasonu Evi
Proje Yeri: Kartal, İstanbul
Proje Ofisi: Tamirci Architects
Proje Tipi: Tek Ev / Villa
Proje Tipi Grubu: Konut
Tasarım Ekibi: Can Tamirci
İşveren: Tadım Gıda
Yardımcı: Pınar Aydın, Sevda Ağcakale, Sezin Taner
Ana Yüklenici: Sena İnşaat ve Makina, Tuna Yapı
İç Mekan Projesi: Esat Fişek İç Mimarlık
Proje Yöneticisi: Özden Yaman
Grafik Tasarım: Dilara Sezgin
Statik Projesi: Sigma Mühendislik
Mekanik Projesi: Deko Mühendislik
Elektrik Projesi: Atlantis Proje
Maket: 4. Boyut
Fotoğraf: ALTKAT Architectural Photography, İbrahim Özbunar
Mimari Mesleki Kontrollük: Tamirci Architects
Şantiye Yöneticisi: Metin Yıldız
Proje Başlangıç Yılı: 2012
Proje Bitiş Yılı: 2013
İnşaat Başlangıç Yılı: 2013
İnşaat Bitiş Yılı: 2015
Arsa Alanı: 874 m2
Toplam İnşaat Alanı: 1,165 m2