16/19
Paylaş
Resmi Orjinal Boyutunda Göster
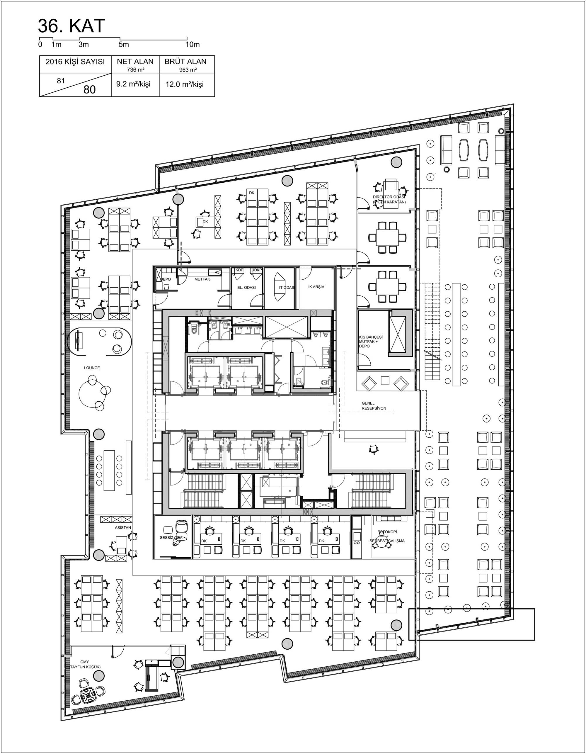
Odea Bank Bank Audi Headquarters Istanbul
Proje Yeri: İstanbul
Proje Ofisi: GMW MIMARLIK
Proje Tipi: Ofis
Proje Tipi Grubu: Ticari
Tasarım Ekibi: Dicle Demircioğlu, Russell Jones, Günsel Reçeloğlu Kurt, Selcen Karatay, Zeynep Sümbül Enhoş, Damla Turan, Ceyda Cihangir, Semiha Altıntaş, Bengisu İlksoy
İşveren: ODEA Bank
Ana Yüklenici: Sistema Teknolojik Yapı
Proje Başlangıç Yılı: 2014
Proje Bitiş Yılı: 2015
İnşaat Başlangıç Yılı: 2014
İnşaat Bitiş Yılı: 2015