19/19
Paylaş
Resmi Orjinal Boyutunda Göster
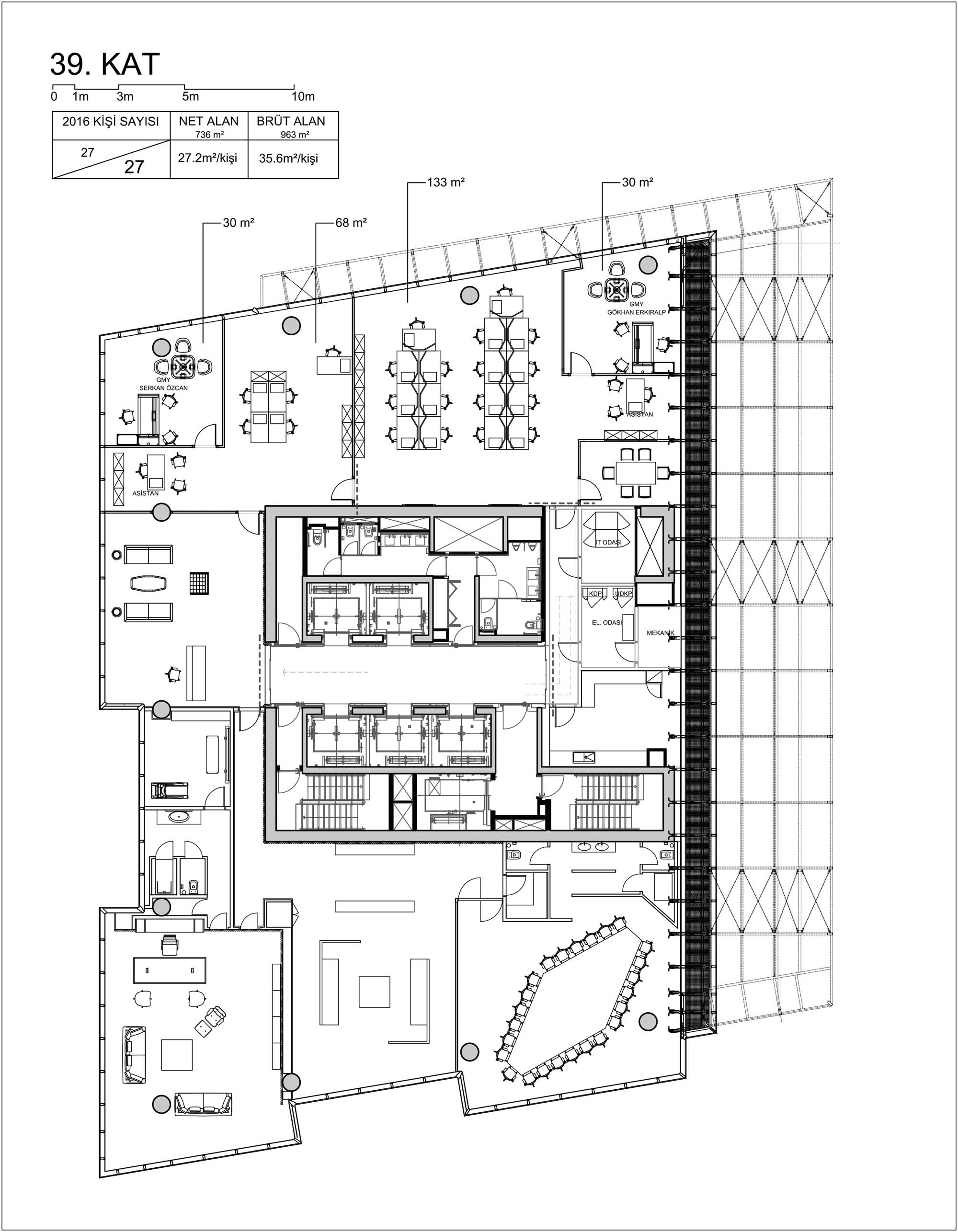
Odea Bank Bank Audi Headquarters Istanbul
Project Location: İstanbul
Project Office: GMW MIMARLIK
Project Type: Offices
Proje Tipi Grubu: Commercial
Tasarım Ekibi: Dicle Demircioğlu, Russell Jones, Günsel Reçeloğlu Kurt, Selcen Karatay, Zeynep Sümbül Enhoş, Damla Turan, Ceyda Cihangir, Semiha Altıntaş, Bengisu İlksoy
Employer: ODEA Bank
Ana Yüklenici: Sistema Teknolojik Yapı
Project Start Date: 2014
Project End Date: 2015
Construction Start Date: 2014
Construction End Date: 2015